Premium New development
Retour aux Résultats

Villa de 3 chambres à vendre à Marbella

Marbella, Malaga, Andalousie, Espagne

€2 100 000  [£1 828 154]

Villa de 3 chambres à vendre à Marbella

Marbella, Malaga, Andalousie, Espagne

€2 100 000  [£1 828 154]

Détails du bien immobilier


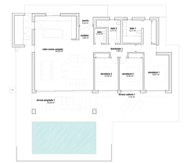
  • Chambres: 3
  • Salles de bain: 3
  • Emissions: B
  • Consommation: B
  • Surface du terrain: 631 m2
  • Surface habitable: 322 m2

Description complète


Une opportunité unique – nouvelle villa de 3 chambres dans le domaine exclusif de Benahavís avec coûts d'achat de revente

Cette toute nouvelle villa d'angle à un seul niveau offre une occasion exceptionnelle d'acquérir une maison nouvellement construite avec des coûts d'achat de revente – combinant luxe, valeur et exclusivité dans l'une des communautés les plus recherchées de Benahavís.

Dotée de 3 chambres spacieuses et de 3 salles de bains élégantes, la villa présente un design lumineux et ouvert avec une cuisine entièrement équipée, un coin repas et un grand espace de vie. Des plafonds ensanglantés et des fenêtres au plafond remplissent la maison de lumière naturelle, connectant parfaitement l'intérieur à son jardin privé, à sa piscine et à son magnifique environnement méditerranéen.

Situé dans un prestigieux domaine fermé à Benahavís inférieur, l'emplacement bénéficie d'une position privilégiée entre Marbella, Estepona, et le charmant village de montagne de Benahavís. Entouré d'oliviers et de vues panoramiques, il offre tranquillité, sécurité et style de vie exceptionnel.

Les résidents bénéficient d'une sécurité 24h/24, d'un terrain immaculé et d'un accès exclusif à un Club House privé doté d'une piscine intérieure chauffée, d'une salle de sport entièrement équipée, d'un sauna, d'un bureau et de l'entretien de chaque villa.

Comme première revente disponible dans ce développement acclamé – initialement lancé en 2021 – cette villa d'angle offre une intimité améliorée, une lumière naturelle supplémentaire et des vues ouvertes, le tout dans la propriété la plus chère de sa phase. L'achèvement est prévu pour le premier trimestre de 2026, avec un fort potentiel de croissance du capital au moment de la livraison.

C'est une occasion rare d'obtenir une villa moderne conçue par les architectes dans l'une des communautés les plus exclusives de la Costa del Sol, parfaite pour les acheteurs exigeants qui recherchent le style, la sécurité et le potentiel d'investissement intelligent.

Demandez aujourd'hui tous les détails, plans d'étage et possibilités de visionnement exclusif.
Plus

La carte peut ne pas indiquer l'emplacement exact

Cette annonce immobilière (réf: BLXE-1020B) est fournie par BeLuxe Properties et ne constitue pas nécessairement une description précise d’un bien particulier. Bien que aplaceinthesun.com (APITS Ltd.) demande à tous les annonceurs de fournir des informations correctes, il ne vérifie pas les informations fournies et ne peut être tenu responsable pour quelque erreur que ce soit. Aplaceinthesun.com recommande de solliciter un avis juridique indépendant avant tout achat de bien immobilier à l'étranger.