Premium New development

Maison de 6 chambres à vendre à Saint John

Saint John, Grenade

€2 114 834  [$2 500 000]

Maison de 6 chambres à vendre à Saint John

Saint John, Grenade

€2 114 834  [$2 500 000]

Détails du bien immobilier


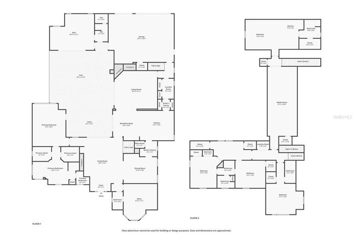
  • Chambres: 6
  • Salles de bain: 0
  • Surface du terrain: 984 m2
  • Surface habitable: 545 m2

Description complète


**Luxurious Celebration Estate Across from the 18th Hole**

Experience the pinnacle of refined living in this completely reimagined estate home, perfectly situated on Celebration’s coveted Golfpark Drive. Encompassing nearly 6,000 square feet of stunning design, this residence blends elegance with modern comfort in every detail. The first-floor primary suite is a serene sanctuary, featuring dual custom closets and a lavish spa-inspired bath with a Japanese heated toilet, spacious shower with seating, and exquisite finishes. A private office, two living rooms with wood-burning fireplaces and fitness room with custom sauna provide thoughtfully designed spaces for both productivity and leisure.

At the heart of the home, the gourmet kitchen is a showpiece—anchored by striking quartzite surfaces, a dazzling LED-lit island and backsplash, and top-of-the-line Miele appliances including induction cooking. The mirrored Sub-Zero refrigerator and freezer, dual Sub-Zero drawers, and dual pantries—one butler’s, one traditional—ensure both beauty and practicality for every culinary need.

Step through to your own private outdoor oasis, where a heated pool and spa are framed by a covered living area ideal for evening gatherings or movie nights under the stars. The home’s integrated surround sound envelops every space in luxury ambiance, enhancing both indoor and outdoor living.

Upstairs, a generous studio apartment with full kitchen and bath provides flexibility for guests or extended family, complemented by a grand theater room with additional Sub-Zero drawers and three spacious bedrooms, including a private suite and Jack-and-Jill layout. Every corner of this remarkable residence has been curated for those who appreciate fine craftsmanship and effortless sophistication.

This is more than a home—it’s a lifestyle of distinction, steps from Celebration Golf Club and the vibrant downtown district’s charming restaurants and boutiques.
Plus

La carte peut ne pas indiquer l'emplacement exact

Cette annonce immobilière (réf: S5137901) est fournie par Alistair Brown International Real Estate et ne constitue pas nécessairement une description précise d’un bien particulier. Bien que aplaceinthesun.com (APITS Ltd.) demande à tous les annonceurs de fournir des informations correctes, il ne vérifie pas les informations fournies et ne peut être tenu responsable pour quelque erreur que ce soit. Aplaceinthesun.com recommande de solliciter un avis juridique indépendant avant tout achat de bien immobilier à l'étranger.