Premium New development
Retour aux Résultats

Villa de 6 chambres à vendre à Peyia

Peyia, Paphos, Chypre

€3 500 000  [£3 046 923]

Villa de 6 chambres à vendre à Peyia

Peyia, Paphos, Chypre

€3 500 000  [£3 046 923]

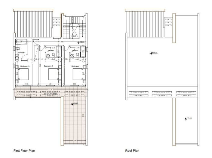
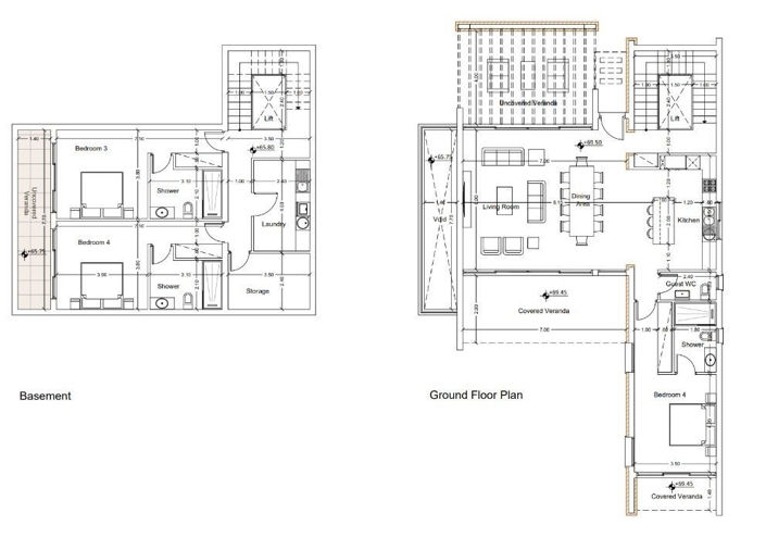
Détails du bien immobilier


  • Chambres: 6
  • Salles de bain: 5
  • Surface du terrain: 923 m2
  • Surface habitable: 389 m2

Description complète


Cet impressionnant Sur plan Individuelle Villa, dont l'achèvement est prévu en 2027, possède un impressionnant espace intérieur de 389 m2. Nichée dans le magnifique quartier de Pegeia-Cap. St. George Resort, cette maison moderne offre un mélange parfait de luxe et de confort. La région est connue pour ses paysages pittoresques, son centre-ville charmant et sa proximité avec de magnifiques plages, ce qui en fait un endroit idéal pour les familles et les amoureux de la nature. Le Villa dispose de six chambres spacieuses et de cinq salles de bains bien équipées, offrant une grande place pour la détente. La propriété est située sur un grand Terrain et comprend un sous-sol entièrement terminé. Les résidents apprécieront les commodités modernes, telles qu'un système centralisé de VRV à courant alternatif, Chauffage au sol, et un ascenseur pour un accès facile à tous les niveaux. Sortez pour profiter de votre infinity privé Piscine, de votre salle de sport et de votre vue panoramique spectaculaire sur la mer. Le complexe fermé assure la confidentialité et la sécurité tout en étant proche d'un terrain de golf pour les amateurs de plein air.

Cet impressionnant Villa répond non seulement aux normes d'efficacité énergétique avec une note A, mais présente également un Opportunité d’investissement exceptionnel dans une communauté prospère. Pour Plus de détails, veuillez contacter Aurea Properties.
Plus

*Certaines descriptions de biens immobiliers sur ce site sont traduites automatiquement par intelligence artificielle. Malgré tous nos efforts pour garantir leur exactitude, des erreurs ou des inexactitudes peuvent subsister. La version originale de l'annonce fait foi.

La carte peut ne pas indiquer l'emplacement exact

Cette annonce immobilière (réf: 1154) est fournie par Aurea Properties et ne constitue pas nécessairement une description précise d’un bien particulier. Bien que aplaceinthesun.com (APITS Ltd.) demande à tous les annonceurs de fournir des informations correctes, il ne vérifie pas les informations fournies et ne peut être tenu responsable pour quelque erreur que ce soit. Aplaceinthesun.com recommande de solliciter un avis juridique indépendant avant tout achat de bien immobilier à l'étranger.