Premium New development
Retour aux Résultats

Propriété de 4 chambres à vendre à Montenegro

Montenegro, Faro City, Algarve, Portugal

€760 000  [£661 617]

Propriété de 4 chambres à vendre à Montenegro

Montenegro, Faro City, Algarve, Portugal

€760 000  [£661 617]

Détails du bien immobilier


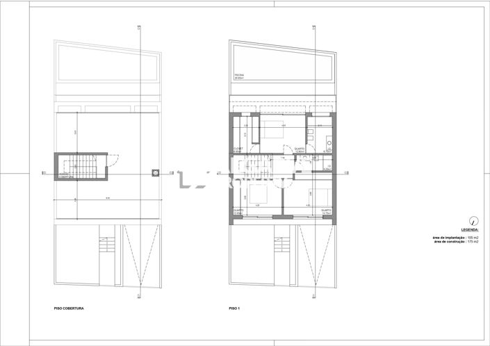
  • Chambres: 4
  • Salles de bain: 3
  • Surface du terrain: 189 m2
  • Surface habitable: 166 m2

Description complète


Bienvenue dans cette exclusive villa moderne de 4 chambres, située à Montenegro, Faro, à courte distance de laéroport Gago Coutinho et de toutes les commodités essentielles.

Cette propriété aux lignes contemporaines disposera dune piscine, de terrasses, dun jardin, dun stationnement privé, de placards intégrés, dune terrasse rooftop ainsi que dun vaste sous-sol, offrant la possibilité de créer des espaces personnalisés tels quune salle de sport, une buanderie, une salle de cinéma ou une salle de jeux, alliant fonctionnalité, confort et élégance.

La villa étant encore en phase de finition, le futur propriétaire bénéficiera de la liberté de personnaliser les finitions, notamment les couleurs, les céramiques et les revêtements, afin dadapter la maison à ses goûts personnels.

La propriété sera équipée de solutions techniques modernes, comprenant un système solaire double de 300 litres, une climatisation inverter (chaud et froid) ainsi quun chauffage au sol dans toute la maison, garantissant une excellente efficacité énergétique et un confort thermique optimal tout au long de lannée.

Située dans lun des quartiers les plus prisés de Faro, la villa bénéficie dune vue sur la mer, dun terrain entièrement clôturé et dun environnement offrant intimité et tranquillité. Les espaces intérieurs ont été soigneusement conçus pour maximiser la luminosité naturelle et le bien-être, avec une cuisine moderne, un salon spacieux, des balcons et un hall dentrée, idéals pour la vie quotidienne comme pour recevoir.

Sa localisation privilégiée permet un accès rapide aux principaux points dintérêt de lAlgarve, tout en offrant un environnement résidentiel calme et agréable.

Une opportunité unique dacquérir une villa neuve, personnalisable et de haut standing, dans lun des secteurs les plus recherchés de Faro.

Planifiez votre visite et venez découvrir votre future maison en Algarve!

AlgarveProperty.com - AMI: 2196 - T.: 00351 289310310
Plus

La carte peut ne pas indiquer l'emplacement exact

Cette annonce immobilière (réf: MB268847F) est fournie par AlgarveProperty.com et ne constitue pas nécessairement une description précise d’un bien particulier. Bien que aplaceinthesun.com (APITS Ltd.) demande à tous les annonceurs de fournir des informations correctes, il ne vérifie pas les informations fournies et ne peut être tenu responsable pour quelque erreur que ce soit. Aplaceinthesun.com recommande de solliciter un avis juridique indépendant avant tout achat de bien immobilier à l'étranger.