Premium New development

Villa de 3 chambres à vendre à Benijofar

Benijofar, Alicante, Région de Valence, Espagne

€515 000  [£448 333]

Villa de 3 chambres à vendre à Benijofar

Benijofar, Alicante, Région de Valence, Espagne

€515 000  [£448 333]

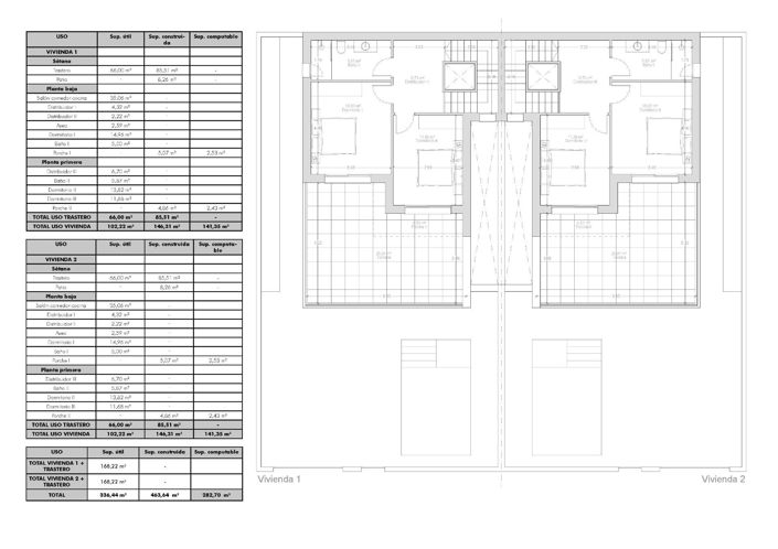
Détails du bien immobilier


  • Chambres: 3
  • Salles de bain: 3
  • Surface du terrain: 200 m2
  • Surface habitable: 141 m2

Description complète


Les villas Jumelée de luxe de construction neuve à Benijófar Costa Blanca Vivre en position privilégiée à Benijófar Ces villas Jumelée de construction neuve exclusives sont situées dans la charmante ville de Benijófar, l'un des quartiers les plus recherchés sur le Costa Blanca. Connue pour son mélange de tradition et de mode de vie moderne, Benijófar offre tous les services essentiels, y compris les supermarchés, les pharmacies, les banques, les restaurants et les magasins locaux. Le développement est stratégiquement positionné à seulement 10 km des plages dorées de Guardamar del Segura et à seulement 30 km de l'aéroport Alicante, ce qui en fait un emplacement idéal pour la vie permanente et les séjours de vacances. Conception spacieuse et moderne Chaque Villa a été conçu dans un style contemporain, maximisant l'espace et la lumière naturelle. La distribution comprend trois chambres (une sur le Rez-de-chaussée et deux au premier étage) et trois salles de bains (dont une au sous-sol), ce qui les rend parfaites pour les familles et les invités. Le salon ouvert avec salle à manger s'intègre parfaitement dans le Cuisine équipée, créant un environnement chaleureux et fonctionnel. Les grandes fenêtres améliorent la luminosité de la maison. Caractéristiques et extras premium Ces villas se distinguent par leurs finitions de haute qualité et leurs détails réfléchis: 66 m2 de sous-sol avec salle de bain, galerie et salle de lavage Piscine privée, Solarium avec barbecue et évier Décoratif Cheminée dans le salon Parking privé dans l'ascenseur Terrain du sous-sol à Dernier étage 3 panneaux solaires photovoltaïques et éclairage LED dans tout pré-installé Climatisation Salles de bains entièrement équipées avec meubles et écrans de douche Terrain tailles à partir de 200 m2 Mode de vie et environnements Benijófar combine le charme d'un village espagnol traditionnel avec la commodité des services modernes. Les amoureux de la nature apprécieront le parc naturel voisin, idéal pour la marche et le vélo. Pour les amateurs de golf, La Marquesa Golf est à seulement 5 km, tandis que plusieurs parcours Autre se trouvent dans un rayon de 15 km. Les familles peuvent visiter les parcs aquatiques de Rojales (4 km) et Torrevieja (12 km), ou explorer la ville animée de Torrevieja elle-même, à seulement 12 km. Excellente connectivité Les villas bénéficient d'un accès facile aux autoroutes N-332 et AP-7, assurant des liaisons rapides vers Alicante, Elche, Orihuela Costa et Murcie. La zone offre l'équilibre parfait entre la tranquillité, les commodités et l'accessibilité. Votre maison de rêve en Costa Blanca Vivez le luxe, le confort et la vie méditerranéenne dans ces superbes villas neuves à Benijófar. Contactez-nous aujourd'hui pour Plus de détails et pour organiser une visite de votre future maison. Chez Homes Overseas, nous nous engageons à trouver la maison parfaite pour répondre aux besoins individuels de chacun de nos clients. Pour y parvenir, nous offrons un service unique, gratuit et personnalisé, assorti de propriétés spécifiques à des clients individuels pour créer l'association parfaite. Pour plus d'informations, veuillez nous contacter maintenant en utilisant le formulaire ci-contre et l'un de nos spécialistes de l'immobilier vous appellera pour discuter de vos besoins un peu plus en détail.
Plus

*Certaines descriptions de biens immobiliers sur ce site sont traduites automatiquement par intelligence artificielle. Malgré tous nos efforts pour garantir leur exactitude, des erreurs ou des inexactitudes peuvent subsister. La version originale de l'annonce fait foi.

La carte peut ne pas indiquer l'emplacement exact

Cette annonce immobilière (réf: HONN9148) est fournie par Homes Overseas et ne constitue pas nécessairement une description précise d’un bien particulier. Bien que aplaceinthesun.com (APITS Ltd.) demande à tous les annonceurs de fournir des informations correctes, il ne vérifie pas les informations fournies et ne peut être tenu responsable pour quelque erreur que ce soit. Aplaceinthesun.com recommande de solliciter un avis juridique indépendant avant tout achat de bien immobilier à l'étranger.