Premium New development

Terrain à vendre à Alvor

Alvor, Algarve, Portugal

€525 000  [£458 075]

Terrain à vendre à Alvor

Alvor, Algarve, Portugal

€525 000  [£458 075]

Détails du bien immobilier


  • Chambres: 0
  • Salles de bain: 0
  • Surface du terrain: 4040 m2
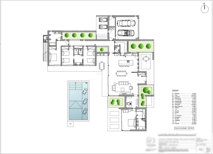
  • Surface habitable: 349 m2

Description complète


Niché au cur du prestigieux parcours de golf de Penina, à quelques minutes du charmant village d'Alvor, ce superbe terrain de 4.040m² offre une opportunité rare de créer la maison de vos rêves dans l'un des endroits les plus prisés de l'Algarve.
Projet / Etude (non approuvé) pour un style de vie moderne avec plus de 349m².

L'agencement comprend :
Quatre chambres spacieuses, chacune offrant confort et intimité
Bureau, idéal pour le télétravail ou les études
Impressionnant salon-salle à manger ouvert de 81m², idéal pour recevoir
Buanderie séparée, des toilettes invités et un garage privé avec 34m2

La propriété bénéficie également d'un accès direct au golf et à ses sentiers pittoresques.

Cet etude soigneusement conçu allie luxe, intimité, espace et vue panoramique sur le luxuriant parcours de golf environnant. Que vous souhaitiez y construire une résidence principale ou un pied-à-terre de vacances, ce terrain offre un cadre de vie exceptionnel.

Situé à quelques minutes en voiture de certaines des plus belles plages et des commodités locales de l'Algarve, c'est le cadre idéal pour créer votre villa sur mesure.

*Les caractéristiques/équipements mentionnés dans cette description sont soumis à vérification et accord entre les vendeurs et les acheteurs.

Fine & Country Algarve fait partie du réseau international dagences F&C dans plus de 300 emplacements dans le monde. Nous avons quatre agences en Algarve couvrant toute la région d'est en ouest. Nous travaillons également en collaboration avec les agences Fine & Country dans autres emplacements au Portugal et à l'étranger. En Algarve, Fine & Country dispose d'un vaste portefeuille de propriétés à vendre et d'une équipe dédiée de professionnels avec une connaissance approfondie du marché.

DPE: Exempt
Plus

La carte peut ne pas indiquer l'emplacement exact

Cette annonce immobilière (réf: FC1067VCP) est fournie par Fine and Country Algarve et ne constitue pas nécessairement une description précise d’un bien particulier. Bien que aplaceinthesun.com (APITS Ltd.) demande à tous les annonceurs de fournir des informations correctes, il ne vérifie pas les informations fournies et ne peut être tenu responsable pour quelque erreur que ce soit. Aplaceinthesun.com recommande de solliciter un avis juridique indépendant avant tout achat de bien immobilier à l'étranger.