Premium New development

Villa de 3 chambres à vendre à Mazarron

Mazarron, Murcie, Région de Murcie, Espagne

€229 000  [£198 716]

Villa de 3 chambres à vendre à Mazarron

Mazarron, Murcie, Région de Murcie, Espagne

€229 000  [£198 716]

Détails du bien immobilier


  • Chambres: 3
  • Salles de bain: 2

Description complète


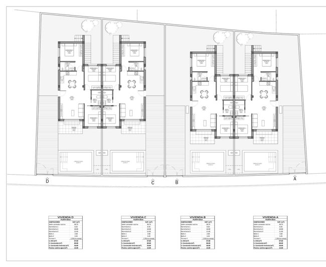
New Build Semi Detached Villas with Private Pool in Country Club Mazarron

Modern Villas in a Quiet Residential Environment
Discover this exclusive new development of only four semi detached villas located in the Country Club area of Mazarron, Murcia. Set in a peaceful residential environment surrounded by nature, this location offers the perfect balance between tranquillity and accessibility. The Country Club is known for its relaxed atmosphere, wide streets and proximity to both the coast and the town of Mazarron, making it an attractive option for permanent living or holiday use.

Single Level Design with Private Outdoor Spaces
Each villa is thoughtfully designed on one single level, offering comfort and easy living. The layout includes three spacious bedrooms and two bathrooms, one of them en suite. The bright open plan living area combines the lounge, dining space and kitchen, with direct access to the terrace and garden. Large windows allow natural light to flow through the home and create a seamless connection between indoor and outdoor living.

The private garden features artificial grass for low maintenance, a private swimming pool and a terrace ideal for sunbathing or outdoor dining. Each property also includes parking within the plot, ensuring convenience and security.

Private Solarium with Open Views
Accessed via an external staircase, the private rooftop solarium offers an additional outdoor living area to enjoy the Mediterranean climate all year round. The solarium is prepared with water and electricity connections, allowing the future installation of a summer kitchen, outdoor shower or chill out area. This elevated space is perfect for relaxing, entertaining guests or enjoying open views of the surrounding landscape.

High Quality Finishes and Modern Comfort
These new build villas are constructed using high quality materials and modern finishes to ensure durability and comfort. Features include fitted wardrobes in all bedrooms, pre installation for ducted air conditioning and pre installation for the kitchen, giving buyers the opportunity to customize the interior to their personal style. The contemporary design and practical layout make these homes suitable as a permanent residence, a holiday home or a smart investment.

Convenient Location Near Mazarron and the Coast
The development is located approximately 9 km from the beaches of Mazarron and just 5 km from Mazarron town, where all essential services can be found, including shops, restaurants, medical centers and schools. The area also benefits from easy access to the motorway, allowing smooth connections to nearby towns and cities.

Key Distances to Points of Interest
Mazarron town: 5 km
Beaches of Mazarron and Bolnuevo: 9 km
Puerto de Mazarron marina: 14 km
Golf courses: 20 km
Murcia Corvera Airport: 45 km
Cartagena city: 35 km

Your New Home in the Costa Calida
Enjoy privacy, comfort and outdoor living in one of these exclusive new build villas in Country Club Mazarron. Contact us today for more information or to arrange a viewing and secure your place in this attractive residential area.
Plus

La carte peut ne pas indiquer l'emplacement exact

Cette annonce immobilière (réf: ERG6358Y) est fournie par Espana Dream Properties et ne constitue pas nécessairement une description précise d’un bien particulier. Bien que aplaceinthesun.com (APITS Ltd.) demande à tous les annonceurs de fournir des informations correctes, il ne vérifie pas les informations fournies et ne peut être tenu responsable pour quelque erreur que ce soit. Aplaceinthesun.com recommande de solliciter un avis juridique indépendant avant tout achat de bien immobilier à l'étranger.