Premium New development
Retour aux Résultats

Terrain à vendre à Agios Nikolaos

Agios Nikolaos, Lasithi, Crète, Grèce

€155 000  [£134 935]

Terrain à vendre à Agios Nikolaos

Agios Nikolaos, Lasithi, Crète, Grèce

€155 000  [£134 935]

Détails du bien immobilier


  • Chambres: 0
  • Salles de bain: 0

Description complète


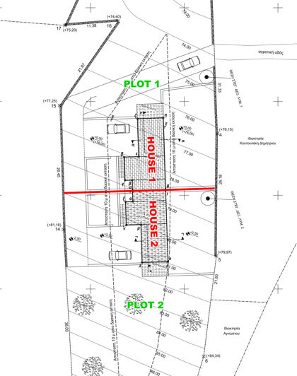
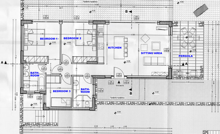
Le bâtiment Terrain, bien placé dans un endroit serein parmi les pins et sur une pente graduelle Terrain. De là, la vue sur la mer, la campagne environnante et les montagnes est vraiment magnifique. Il est de 4270 m2 et a déjà obtenu le permis de construire pour deux magnifiques bungalows Jumelée. Chaque bungalow dispose de 103 m2 de Rez-de-chaussée sont (plus 103 m2 de sous-sol) + véranda avec pergola + Parking privé. Le Terrain est accessible par la route et les services tels que l'électricité, l'eau et les lignes téléphoniques avec Internet haut débit sont à proximité (100 m) et faciles à connecter. À moins de 2 kilomètres du village d'Istron - célèbre pour ses plages de sable fin, et à environ 10 kilomètres de la station touristique d'Agios Nikolaos. L'aéroport international d'Héraklion est à environ 45 minutes en voiture d'ici. Le village d'Istron possède des supermarchés, des tavernes, des bars, des boulangeries, etc. qui sont ouverts toute l'année. Il y a un bon service de bus pour Agios Nikolaos, Heraklion, Ierapetra et Siteia. Agios Nikolaos est la capitale du comté de Lasithi et est situé à la baie de Mirabello, au nord-est de Crète, à seulement 45 minutes de l'aéroport international d'Héraklion. Géographiquement, la ville est bien protégée des vents violents, ce qui permet de pratiquer des sports nautiques et de nager presque toute l'année. Bien qu'Agios Nikolaos ait une population de moins de 20 000 habitants, il possède plusieurs banques, supermarchés, magasins de toutes sortes, médecins, un hôpital moderne de haut niveau, des courts de tennis et de tennis publics Piscine, une marina, un port, un cinéma, un théâtre, des gymnases, un terrain de golf à 9 trous, des écoles allant de la maternelle au lycée de 6 niveaux et en général toutes les commodités que vous attendez de trouver dans une ville européenne moderne. Le microclimat est l'un des meilleurs de Grèce et les températures modérées dépassent rarement 30°C en été ou tombent en dessous de 15°C en hiver. Ce climat sec et merveilleux, associé à la beauté naturelle de la région, a attiré la plupart des hôtels de luxe de Grèce. De là, les vues sur la mer et la campagne environnante sont vraiment spectaculaires. La parcelle a tous les documents nécessaires pour demander un permis de construire. L'intrigue est à moins de 2 km du village d'Istron, près de ses plages de sable fin, et à environ 10 km de la station touristique d'Agios Nikolaos. * Les mesures terrestres de 4300 m2. * Des maisons de 200 m de haut et plus et des sous-sols peuvent être construites sur ces terres. L'électricité et l'eau sont très fortes à proximité. L'accè est plus rude. Le village d'Istron est un centre commercial où se trouvent des supermarchés, des tavernes, des bars, des boulangeries, etc. ouverts toute l'année. Il y a un bon service de bus à partir de Saint-Nicolas, Héraklion, Irapetra et Siteia. Agios Nikolaos est la capitale du comté de Lassithi et est situé dans la baie de Mirabello, au nord-est de la Crégrave, à seulement 45 minutes de l'aéroport international de Hraklion. Géographiquement, la ville est bien protégée des vents forts, ce qui permet les sports nautiques et la natation presque toute l'année. Bien qu'Agios Nikolaos ait une population inférieure à 20 000 habitants, il possède plusieurs banques, supermarchés, magasins de toutes sortes, des restaurants, un hôpital moderne de haut standing, des courts de tennis et publics, un port de plaisance, un port, un cinéma, un théâtre, des salles de sport, un parcours de golf de 9 trous, de belles écoles de pin-up, des écoles de 6 niveaux et des écoles secondaires, ainsi que tous les équipements que vous attendez dans une ville européenne moderne. Le microclimat est l'un des meilleurs de Grèce et les températures modérées dépassent rarement 30°C en hiver ou tombent en automne en dessous de 15°C en hiver. Ce climat sec et merveilleux, ainsi que la beauté naturelle de la région, attirent la plupart des hôtels de grande classe de la région.
Plus

*Certaines descriptions de biens immobiliers sur ce site sont traduites automatiquement par intelligence artificielle. Malgré tous nos efforts pour garantir leur exactitude, des erreurs ou des inexactitudes peuvent subsister. La version originale de l'annonce fait foi.

La carte peut ne pas indiquer l'emplacement exact

Cette annonce immobilière (réf: 5D-PLVAT10k) est fournie par Buy and Sell Estate Agency et ne constitue pas nécessairement une description précise d’un bien particulier. Bien que aplaceinthesun.com (APITS Ltd.) demande à tous les annonceurs de fournir des informations correctes, il ne vérifie pas les informations fournies et ne peut être tenu responsable pour quelque erreur que ce soit. Aplaceinthesun.com recommande de solliciter un avis juridique indépendant avant tout achat de bien immobilier à l'étranger.