Premium New development

Maison de campagne de 16 chambres à vendre à Pérouse

Pérouse, Ombrie, Italie

€2 380 000  [£2 090 837]

Maison de campagne de 16 chambres à vendre à Pérouse

Pérouse, Ombrie, Italie

€2 380 000  [£2 090 837]

Détails du bien immobilier


  • Chambres: 16
  • Salles de bain: 18
  • Surface du terrain: 14476 m2
  • Surface habitable: 851 m2

Description complète


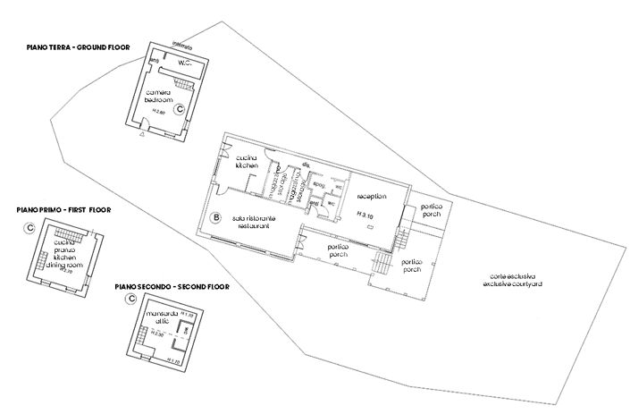
The property is made up of three buildings, each with its own function. The ancient manor house now has 14 suites, each with an independent entrance with direct access to the garden and a spectacular view of the forest. Then there is a second tower building on three floors, composed of a dining-living area and two bedrooms with ensuite bathroom, designed as a home for the owner. The third building is on one floor and here we find a first large room, perfect for conversation or yoga courses, a dining room, a professional kitchen, two rooms used as a pantry/warehouse, two bathrooms and a large porch for outdoor breakfasts and dinners. The garden surrounding the property measures approximately 1.5 hectares, has three entrances and inside there is a swimming pool measuring 17 x 5 meters in a secluded area. The furnishings, minimal and designer, are included in the price as are all the furnishing accessories.

STATE OF REPAIR
The property was completely renovated and expanded in 2007 and is the result of an accurate architectural study on the distribution of spaces and the use of natural light. The traditional elements typical of the farmhouse, such as wood and brick ceilings and insulation, have been expertly combined with modern elements such as the large windows and the internal finishes made of modern and essential materials. The windows are made of iron with thick glass for excellent thermal insulation, the roof is insulated and ventilated. The structure is in excellent condition. The renovation work was carried out to perfection with extreme attention to every detail.

UTILITIES
The property is connected to the electricity grid. The water supply is guaranteed by a well with abundant water and rainwater recovery tanks. Underfloor heating powered by an LPG gas boiler. Solar thermal system for the production of hot water.

USE AND POTENTIAL USES
A fantastic resort where guests can regenerate their mind and body in a place free from any disturbing element and enjoying almost complete privacy.

LOCATION
Umbria Resort Retreat is surrounded by nature but located just 3 kilometers from the nearest town, equipped with all amenities, and from the highway entrance. Lake Trasimeno and the city of Perugia with its airport are only 15 minutes away by car. To reach the property you must travel along a country road in perfect condition for approximately 2 kilometres. From the property there are numerous paths through the woods that you can follow on foot or by bicycle.

LAND REGISTRY DETAILS
The Great Estate group carries out a technical due diligence on each property acquired, through the seller's technician, which allows us to know in detail the urban and cadastral status of the property. This due diligence may be requested by the customer at the time of a real interest in the property.

OWNERSHIP DETAILS AND EVENTUAL CONTRACTUAL OBLIGATIONS
No constraints
Plus

La carte peut ne pas indiquer l'emplacement exact

Cette annonce immobilière (réf: 8894) est fournie par Great Estate Immobiliare Srl et ne constitue pas nécessairement une description précise d’un bien particulier. Bien que aplaceinthesun.com (APITS Ltd.) demande à tous les annonceurs de fournir des informations correctes, il ne vérifie pas les informations fournies et ne peut être tenu responsable pour quelque erreur que ce soit. Aplaceinthesun.com recommande de solliciter un avis juridique indépendant avant tout achat de bien immobilier à l'étranger.