Premium New development

Maison de campagne de 1 chambre à vendre à Barberino Tavarnelle

Barberino Tavarnelle, Florence, Toscane, Italie

Maison de campagne de 1 chambre à vendre à Barberino Tavarnelle

Barberino Tavarnelle, Florence, Toscane, Italie

Price On Application

Détails du bien immobilier


  • Chambres: 1
  • Salles de bain: 2
  • Surface du terrain: 67780 m2
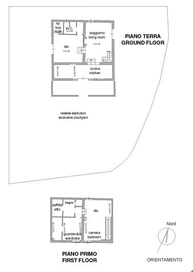
  • Surface habitable: 166 m2

Description complète


Nestled in the enchanting hills of Chianti and beautifully restored in 2022, Villa Anitra presents itself as an oasis of luxury and tranquility.
The property covers a commercial area of approximately 156 square meters, spread over two levels, and overlooks more than 3 hectares of private land that includes olive groves and a manicured garden—offering a perfect blend of nature and design. The exterior immediately captures attention with its natural-style swimming pool, harmoniously integrated into the landscape and surrounded by a relaxation area with umbrellas and loungers, inviting guests to moments of pure well-being. The surrounding land ensures privacy and peace, while the panoramic views over the green Chianti valleys provide a constant backdrop of serenity and beauty. Within the garden, there is also a barbecue area equipped with a grill and a traditional pizza oven.
Access to the property is via a partially paved road, which conveniently leads to the main entrance. The house is distributed over two well-organized floors: On the ground floor lies the heart of the home, a refined and welcoming living area featuring dark parquet flooring and exposed beam ceilings that evoke Tuscan tradition. At the center stands a brick and stone fireplace, perfect for cooler evenings. The spacious living room opens onto the outdoors through French doors that enhance natural light and offer seamless continuity with the garden. The modern and functional kitchen is equipped with up-to-date appliances and high-end finishes, ideal for those who love convivial gatherings and traditional Tuscan cuisine. An internal staircase leads to the first floor, where two bedrooms await. These rooms are characterized by exposed stone walls, air conditioning, and private bathrooms featuring designer jacuzzis and elegant finishes. The result is an atmosphere of exclusive comfort, ideal for creating a personal space dedicated to wellness and relaxation.
The master bedroom enjoys excellent natural light and captivating views over the surrounding hills. This residence represents a rare opportunity for those seeking to experience the elegance and peace of the Tuscan countryside—without compromising on modern comforts. Every space has been carefully designed to ensure a high quality of life within a setting of exceptional beauty.

STATE OF REPAIR
The entire renovation was completed in early 2022, incorporating the most innovative techniques available. The structure is in excellent condition, having been meticulously maintained by owners who are highly attentive to detail. Externally, the property features plastered facades combined with stone elements. Inside the main farmhouse, you will find wooden ceilings and flooring. The property benefits from excellent sunlight exposure, resulting in bright and inviting interiors.

UTILITIES
The property is fully operational, equipped with all essential utilities, and properly connected to all services. All systems are compliant with regulations and in perfect working order.
The property benefits from an advanced heating system, as well as recently upgraded electrical and plumbing installations using state-of-the-art materials. Classified as energy rating A++, it guarantees exceptional efficiency and sustainability, supported by 20 kW photovoltaic panels.

USE AND POTENTIAL USES
A magnificent estate perfect for those who cherish a lifestyle surrounded by nature, fully renovated to the highest standards and ready to be enjoyed immediately with all modern comforts. Ideally situated for exploring the most beautiful areas and cities rich in art and history throughout Tuscany.

LOCATION
The property is situated in a prestigious location within the renowned Chianti region, in the municipality of Barberino Tavarnelle, province of Florence.
Distance from airports: Florence 45 km, Pisa 80 km, Bologna 130 km.

LAND REGISTRY DETAILS
The Great Estate group, for every property acquired, conducts a thorough technical due diligence through the seller’s appointed expert, allowing us to gain an in-depth understanding of the urban planning and cadastral status of each asset. This due diligence can be requested by the client at the moment of genuine interest in the property.

OWNERSHIP DETAILS AND EVENTUAL CONTRACTUAL OBLIGATIONS
The property is in the name of a natural person and the sale will be subject to registration tax in accordance with current regulations (see purchase costs for private sales).
Plus

La carte peut ne pas indiquer l'emplacement exact

Cette annonce immobilière (réf: 9683) est fournie par Great Estate Immobiliare Srl et ne constitue pas nécessairement une description précise d’un bien particulier. Bien que aplaceinthesun.com (APITS Ltd.) demande à tous les annonceurs de fournir des informations correctes, il ne vérifie pas les informations fournies et ne peut être tenu responsable pour quelque erreur que ce soit. Aplaceinthesun.com recommande de solliciter un avis juridique indépendant avant tout achat de bien immobilier à l'étranger.