Premium New development

Maison de campagne de 4 chambres à vendre à Pérouse

Pérouse, Ombrie, Italie

€750 000  [£657 491]

Maison de campagne de 4 chambres à vendre à Pérouse

Pérouse, Ombrie, Italie

€750 000  [£657 491]

Détails du bien immobilier


  • Chambres: 4
  • Salles de bain: 4
  • Surface habitable: 561 m2

Description complète


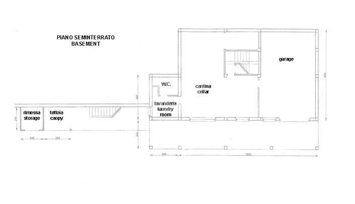
The villa, built in 1996, for a total of 408 square meters is on three floors; in the basement we have a cellar room where a splendid tavern has been created with a bathroom and a laundry area, a double garage and a porch of about 52 square meters; the raised ground floor, also connected to the floor below via an internal staircase, is made up of a large living-dining area, a kitchen, a bathroom and a wonderful covered panoramic terrace of about 80 sqm.; finally, on the first and last floor we find the sleeping area with 4 bedrooms, each with a terrace, and 2 bathrooms. The floor of the sleeping area is accessible via two separate staircases, this way guarantees independent access to two of the four bedrooms, an optimal solution in case of guests. The garden, fenced-in and equipped with an automated gate, measures approximately 1,300 sqm.

STATE OF REPAIR
Villa Querceto has a reinforced concrete structure with thermal block infill and external coat. The finishes are of excellent quality and the systems function perfectly. The floors are stoneware and the windows have double glazing.

UTILITIES
The villa is equipped with all utilities, the boiler runs on LPG gas and there is a connection to the municipal aqueduct.

USE AND POTENTIAL USES
Perfect both as a first and second home, equipped with all comforts and with a wonderful view of the lake. Possibility to build a swimming pool.

LOCATION
The property is located just 5 minutes by car from the shores of Lake Trasimeno, in a hilly position free from disturbing elements.

LAND REGISTRY DETAILS
The Great Estate group carries out a technical due diligence on each property acquired through the seller's technician, which allows us to know in detail the urban and cadastral status of the property. This due diligence may be requested by the client at the time of a real interest in the property.

OWNERSHIP DETAILS AND EVENTUAL CONTRACTUAL OBLIGATIONS
No constraints.
Plus

La carte peut ne pas indiquer l'emplacement exact

Cette annonce immobilière (réf: 7957) est fournie par Great Estate Immobiliare Srl et ne constitue pas nécessairement une description précise d’un bien particulier. Bien que aplaceinthesun.com (APITS Ltd.) demande à tous les annonceurs de fournir des informations correctes, il ne vérifie pas les informations fournies et ne peut être tenu responsable pour quelque erreur que ce soit. Aplaceinthesun.com recommande de solliciter un avis juridique indépendant avant tout achat de bien immobilier à l'étranger.