Premium New development

Maison de campagne de 9 chambres à vendre à Cetona

Cetona, Sienne, Toscane, Italie

€3 600 000  [£3 141 087]

Maison de campagne de 9 chambres à vendre à Cetona

Cetona, Sienne, Toscane, Italie

€3 600 000  [£3 141 087]

Détails du bien immobilier


  • Chambres: 9
  • Salles de bain: 9
  • Surface du terrain: 103178 m2
  • Surface habitable: 1045 m2

Description complète


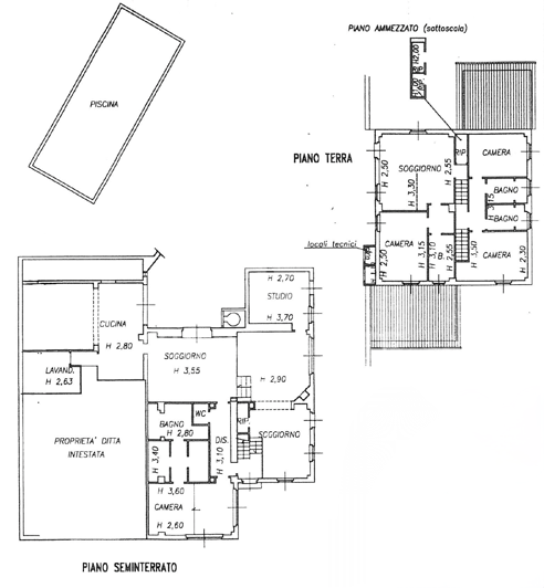
The Elisir Verde Estate consists of two typical Tuscan structures: an elegant country villa and a charming stone farmhouse.
The property can accommodate up to 10 guests in an atmosphere of absolute comfort and conviviality, offering harmonious spaces and an authentic Tuscan living experience.

The 410 sqm farmhouse is distributed over several levels and is surrounded by a romantic, lush garden where yellow rose pergolas intertwine with small labyrinths of lavender, roses and hedges.
The farmhouse enjoys a unique view, with the eye wandering over the soft Tuscan hills and is composed as follows:
On the ground floor, there is a large entrance hall, two spacious living rooms, one of which features a magnificent fireplace and overlooks an enchanting pergola.
From the entrance, a few steps lead up to slightly elevated levels, where you find:
- a kitchen, a dining area distinguished by a beautiful ancient fireplace and a large window overlooking a breathtaking panorama. From the kitchen, you access another charming pergola;
- a first double bedroom with an en suite bathroom;
- on the other side, a hallway leading to two bedrooms, each with a private bathroom;
On the first floor, there is the fourth bedroom with an en suite bathroom.
The basement includes a large garage of approximately 45 square metres, all technical rooms such as the boiler room and pressure system, a hallway leading to a laundry area and a distinctive wine cellar.

The 360 sqm villa is developed over two levels:
On the basement floor, there are two large and bright living rooms with fireplaces and large panoramic windows, a study, a spacious fully equipped kitchen, a guest bathroom, and the master bedroom with an en suite bathroom featuring two spacious walk-in closets. On the same level, there is a garage of approximately 95 square metres and a laundry room of approximately 73 square metres.
The upper floor, accessible via an internal staircase, consists of an additional living area with a kitchenette and three double bedrooms each with private bathrooms.

The two buildings are surrounded by a beautiful ornamental park of 11,000 sqm, with lush gardens, floral and aromatic plants, and medium to tall trees. The park is divided into two distinct areas to ensure maximum privacy for the estate’s two residences, which enjoy two private swimming pools measuring 15 x 7 meters and 11 x 6 meters respectively.

The property includes 9.3 hectares of agricultural land, ensuring complete privacy for both buildings. The land is cultivated with olive groves (7 hectares with 1,500 productive trees), woodland, and arable fields.

STATE OF REPAIR
Both properties are in excellent maintenance condition and offer the possibility of immediate occupancy, having been renovated in 2005 (villa) and 1995 (farmhouse).

The farmhouse features exposed stone facades externally; inside, you will find handmade terracotta floors and ceilings with characteristic wooden beams and terracotta tiles. Several interior walls are exposed stone, contributing to a particularly warm and inviting atmosphere.

The villa has plastered facades externally; inside, you can appreciate handmade terracotta floors and finishes perfectly integrated in a style that skillfully combines tradition and elegance. The heart of the villa is a remarkable kitchen featuring a central island with professional cooking surfaces.

The garden is an additional highlight of this beautiful property, characterized by lush gardens enriched with rare plants, fruit trees and a unique view of the Tuscan countryside. The park has been consistently maintained and cared for, adding significant value to the entire estate. The two private swimming pools are harmoniously integrated into this setting.

UTILITIES
All utilities within the property are present and fully operational. The farmhouse heating system consists of a traditional radiator setup powered by a GPL boiler, while the villa features underfloor heating that can also be supplied by the fireplace or solar panels. Water supply is ensured by the municipal aqueduct, as well as by 4 wells, providing ample water for garden irrigation. Connection to the electrical grid, telephone line, and SAT TV are available, with the possibility to connect to an ADSL line. The villa is equipped with solar panels for domestic hot water production and a photovoltaic system installed in 2023 with a capacity of 7.7 kW.

USE AND POTENTIAL USES
Tenuta Elisir Verde is a magnificent estate that, thanks to its unique features, lends itself to multiple uses. It can serve as a primary residence or an exclusive second home in one of the most enchanting corners of southern Tuscany. During periods of non-occupancy, the estate can be included in international luxury vacation rental circuits, allowing for investment enhancement and reduced management costs.

Thanks to its lands and facilities, Tenuta Elisir Verde also offers the potential to develop or manage a small agricultural enterprise, ideal for producing oil, wine, or other local specialty products, thereby integrating the residential aspect with an authentic, territory-linked business.

LOCATION
Elisir Verde Estate is set in a stunning natural environment at the foothills of Monte Cetona, offering an expansive panoramic view over the valley. The nearest amenities are just 1 km from the property. Access is convenient throughout the year via 800 meters of unpaved road. The estate guarantees the utmost privacy, situated in a completely secluded and intimate countryside corner. The closest A1 motorway exits are Chiusi Chianciano and Fabro, approximately 15 km from the property. Historic cities such as Florence, Siena, Arezzo, Perugia, and Orvieto are reachable within 30 minutes to an hour and fifteen minutes by car.

LAND REGISTRY DETAILS
The Great Estate group carries out, through the seller's technician, a technical due diligence on each acquired property that allows us to thoroughly understand the urban and cadastral situation of each estate. This due diligence can be requested by the client at the time of genuine interest in the property.

OWNERSHIP DETAILS AND EVENTUAL CONTRACTUAL OBLIGATIONS
The property is in the name of a natural person.
Plus

La carte peut ne pas indiquer l'emplacement exact

Cette annonce immobilière (réf: 10013) est fournie par Great Estate Immobiliare Srl et ne constitue pas nécessairement une description précise d’un bien particulier. Bien que aplaceinthesun.com (APITS Ltd.) demande à tous les annonceurs de fournir des informations correctes, il ne vérifie pas les informations fournies et ne peut être tenu responsable pour quelque erreur que ce soit. Aplaceinthesun.com recommande de solliciter un avis juridique indépendant avant tout achat de bien immobilier à l'étranger.