Premium New development

Maison de campagne de 6 chambres à vendre à Narni

Narni, Terni, Ombrie, Italie

€1 285 000  [£1 120 509]

Maison de campagne de 6 chambres à vendre à Narni

Narni, Terni, Ombrie, Italie

€1 285 000  [£1 120 509]

Détails du bien immobilier


  • Chambres: 6
  • Salles de bain: 7
  • Surface habitable: 989 m2

Description complète


The prestigious farmhouse for sale in Umbria consists of two units with a total area of approximately 900 square meters, built according to the rural characteristics of Umbrian farmhouses, paying attention to all details and carefully selecting high-quality construction materials, both aesthetically and qualitatively.

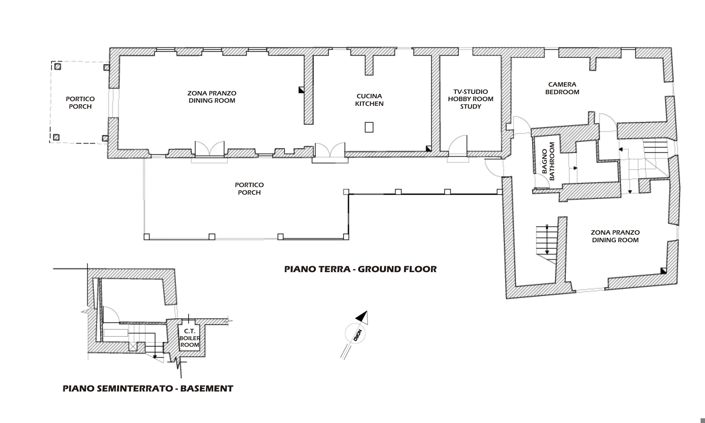
THE FIRST FARMHOUSE FOR SALE IN UMBRIA
The main farmhouse measures approximately 410 square meters plus 80 square meters of porticos and is distributed over two floors in addition to the basement.
On the ground floor, there is a large and bright living area with two antique fireplaces and large openings onto the garden, a beautiful kitchen, one bedroom with an en-suite bathroom, and a guest bathroom.
On the first floor, there are three bedrooms, each with an en-suite bathroom.

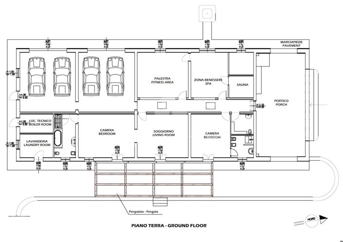
THE SECOND FARMHOUSE FOR SALE IN UMBRIA
The second farmhouse measures approximately 414 square meters, in addition to 55 square meters of pergolas, and is spread over a single level.
On the ground floor, there is a spacious and bright living area, a fitness area with a gym, sauna, changing room, and relaxation area that opens to the large and majestic portico with a barbecue and wood-fired oven, from which one can admire the beautiful infinity pool with breathtaking views.
The farmhouse also includes two spacious bedrooms with en-suite bathrooms, a laundry room, a technical room, and two large garages with capacity for 6 cars.

The sale includes both the interior and exterior furniture.

STATE OF REPAIR
The farmhouse for sale in Umbria, Amazing View, has been built on the recovery of old volumes and constructed from scratch. Externally, it is made of plaster and stone, with wooden beams and tiles for the floors and roof. The flooring, with a more modern taste, is in porcelain stoneware. The windows are made of solid wood with double glazing. All the bathrooms are finished with excellent quality materials.

The sale includes both the indoor and outdoor furniture.

UTILITIES
The property is already equipped with all utilities. Electricity, water via the municipal aqueduct and a well, and gas is supplied by a GPL tank. The garden is fully equipped with an automatic irrigation and lighting system.

USE AND POTENTIAL USES
The property is perfect for those who love absolute privacy, yet is also close to amenities, making it an excellent choice for a primary residence. Given its size, it is well-suited for large families or for a high-end hospitality establishment.

LOCATION
The farmhouse is located in an unspoiled area of the Amerina countryside, just 7 km from Amelia and 14 km from Narni.

To reach the farmhouse, there is about 250 meters of well-maintained dirt road.

In less than an hour's drive, you can reach many places of great tourist interest such as Todi, Orvieto, Perugia, Assisi, Norcia, Viterbo, Tuscania, Tarquinia, Cerveteri, and Rome.

The nearest train station is Orte, which is about 25 km away, and the station in Narni, which is approximately 14 km away.

LAND REGISTRY DETAILS
The property is regularly registered in the Land Registry of the municipality of Narni for the land and in the Real Estate Registry for the buildings.

OWNERSHIP DETAILS AND EVENTUAL CONTRACTUAL OBLIGATIONS
The entire property is currently registered under an agricultural company.
Plus

La carte peut ne pas indiquer l'emplacement exact

Cette annonce immobilière (réf: 2380) est fournie par Great Estate Immobiliare Srl et ne constitue pas nécessairement une description précise d’un bien particulier. Bien que aplaceinthesun.com (APITS Ltd.) demande à tous les annonceurs de fournir des informations correctes, il ne vérifie pas les informations fournies et ne peut être tenu responsable pour quelque erreur que ce soit. Aplaceinthesun.com recommande de solliciter un avis juridique indépendant avant tout achat de bien immobilier à l'étranger.