Premium New development
Retour aux Résultats

Appartement de 1 chambre à vendre à Saint-Jean-d'Aulps

Saint-Jean-d'Aulps, Haute-Savoie, Rhône-Alpes, France

€109 000  [£94 890]

Appartement de 1 chambre à vendre à Saint-Jean-d'Aulps

Saint-Jean-d'Aulps, Haute-Savoie, Rhône-Alpes, France

€109 000  [£94 890]

Détails du bien immobilier


  • Chambres: 1
  • Salles de bain: 1

Caractéristiques


  • Parking
  • Chauffage électrique

Description complète


Vous rêvez d’un pied-à-terre à la montagne, aménagé entièrement selon vos goûts ?
Ce studio à rénover offre une opportunité rare de créer un espace unique, au cœur d’un village alpin dynamique et authentique.
D'autres lots et plans sont disponibles sur demande.

Un emplacement idéal
Situé à Saint-Jean-d’Aulps, charmante commune de Haute-Savoie, ce bien profite d’un environnement exceptionnel. La station de ski du Roc d’Enfer, intégrée au domaine des Portes du Soleil, permet de profiter de kilomètres de pistes en hiver, dans un cadre naturel préservé. En été, la station se transforme en terrain de jeux pour les amateurs de randonnée, Vtt et activités de plein air.

À seulement 10 minutes de Morzine-Avoriaz, 30 minutes du lac Léman et environ 1h15 de Genève, la localisation combine le charme d’un village montagnard et la proximité de grands pôles touristiques et urbains.

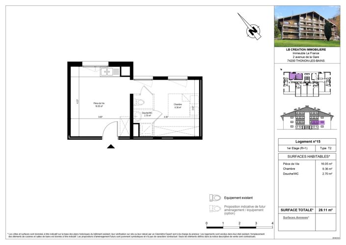
Le studio d’une surface de 28 m2 est vendu avec :
- Une cave privative, pratique pour stocker skis et affaires de montagne
- Une place de parking extérieure, rare et précieuse dans la région.

L’appartement est à rénover intégralement à l’intérieur, offrant la possibilité de repenser totalement son agencement et son style. Les menuiseries extérieures et l’isolation de la résidence ayant déjà été refaites, il ne reste plus qu’à travailler l’intérieur, pour un résultat 100 % personnalisé.

Un potentiel exceptionnel
Ce studio est une véritable page blanche : Vous pourrez concevoir un intérieur chaleureux et fonctionnel, correspondant parfaitement à vos envies. Le chauffage peut être assuré au choix par de simples convecteurs électriques ou par une pompe à chaleur, pour plus de confort et d’économies. Vous avez la liberté d’imaginer un style moderne, rustique ou montagnard chic… et de le transformer en cocon idéal.
Pour les acquéreurs souhaitant déléguer cette étape, il est même possible de proposer un contrat de travaux clé en mains, afin de livrer le bien prêt à habiter ou à louer, sans contrainte pour vous.

Pourquoi investir à Saint-Jean-d’Aulps ?
Une station vivante toute l’année : ski l’hiver, randonnées et activités de montagne l’été.
Une proximité immédiate avec les stations renommées de Morzine, Avoriaz et Les Gets.
La situation stratégique entre lac Léman et Mont-Blanc, avec un accès rapide à Genève.
Une forte attractivité touristique, idéale pour un usage personnel ou un investissement locatif.

Un bien rare à saisir, avec la possibilité de concevoir un appartement qui vous ressemble, au cœur d’un domaine skiable internationalement reconnu.
Plus

La carte peut ne pas indiquer l'emplacement exact

Cette annonce immobilière (réf: Ayohmrpsowv9hab1) est fournie par French Gold Property et ne constitue pas nécessairement une description précise d’un bien particulier. Bien que aplaceinthesun.com (APITS Ltd.) demande à tous les annonceurs de fournir des informations correctes, il ne vérifie pas les informations fournies et ne peut être tenu responsable pour quelque erreur que ce soit. Aplaceinthesun.com recommande de solliciter un avis juridique indépendant avant tout achat de bien immobilier à l'étranger.