Premium New development

Terre à vendre à Peyia

Peyia, Paphos, Chypre

€130 000  [£113 945]

Terre à vendre à Peyia

Peyia, Paphos, Chypre

€130 000  [£113 945]

Détails du bien immobilier


  • Chambres: 0
  • Salles de bain: 0
  • Surface du terrain: 565 m2

Description complète


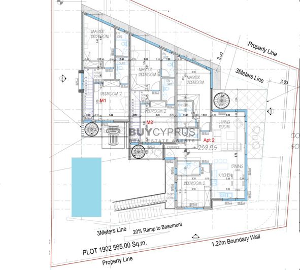
565 SQM PLOT OF LAND IN PEYIA

WITH PLANNING PERMIT FOR 2 APARTMENTS and 2 TOWNHOUSES WITH AMAZING SEA VIEWS

EXCLUSIVELY MARKETED BY BUYCYPRUS TO ENSURE THE UTMOST IN QUALITY AND SERVICE.

Introducing an exceptional sea-view development plot for sale in Peyia, Paphos, offering outstanding investment potential in one of Cyprus’s most desirable real estate locations. This exceptional 565 sqm residential plot presents a rare opportunity to secure prime real estate in one of Paphos’ most sought-after locations. Positioned at the end of a quiet cul-de-sac and benefiting from nearby access to all essential utility services, this property offers both privacy and convenience, making it ideal for residential development or investment.

The plot itself is classified within Zone H3, offering a building density of 60% and coverage of 35%, making it highly suitable for quality low-rise development. Furthermore, it comes with an approved planning permit for the construction of a small complex comprising of 2 apartments and 2 townhouses, complete with a communal swimming pool and allocated covered parking. This pre-approved permit significantly streamlines the development process, saving valuable time and ensuring smoother project execution for investors or developers.

This is a superb opportunity to secure a premium plot in an exceptional location—perfect for residential development/investment in Peyia.

Plot Size 565 sqm

Plot Zone H3

Plot Density 60%

Plot Cover 35%

Any photographs, markings, outlines, or other design on the photographs are indicative and for illustration purposes only.

Peyia is a vibrant and picturesque town in Cyprus with a population of approximately 10,000 residents. Perched mainly on the scenic coastal hills inland from Coral Bay, and just 14 km north of Paphos, the town enjoys an enviable setting where panoramic sea views over Coral Bay and Paphos are a common feature. Its unique hillside elevation and close proximity to the Akamas Peninsula make Peyia a favored destination among all nationalities and international property investors. The area has seen steady growth in holiday homes, permanent residences, and modern developments while still preserving its traditional Cypriot charm.

The town offers a full range of amenities, including a town hall, church, banks, shops, and an impressive selection of restaurants. Peyia’s dining scene continues to expand, with everything from traditional taverns and meze houses to themed restaurants and modern cafés. Nearby Kathikas village further enriches the culinary experience, boasting a variety of acclaimed eateries as well as the popular Vasilikon and Sterna Wineries. The broader Peyia region stretches from the forested hills in the north to the crystal-clear coastline in the south, and from the Bay of Maa to the rugged natural beauty of the Akamas Peninsula to the west—yet the town center remains its most recognized and lively hub.

This property is being sold exclusively by Buy Cyprus Real Estate, a company renowned for its long-standing expertise and unwavering integrity.

Buy Cyprus LTD is a leading and fully accredited estate agency, proudly holding Registration Number 1014 with the Cyprus Real Estate Agents Association and License Number 477/E. With nearly three decades of dedicated service in both the Cyprus and UK markets, the company is widely recognized for its professionalism, transparent guidance, and commitment to providing accurate property information. Paphosproperties is now an integrated part of Buy Cyprus LTD, strengthening the agency’s long-standing reputation as a market leader and ensuring that every client receives objective advice and exceptional care.

Plus

La carte peut ne pas indiquer l'emplacement exact

Cette annonce immobilière (réf: BC16021) est fournie par Buy Cyprus et ne constitue pas nécessairement une description précise d’un bien particulier. Bien que aplaceinthesun.com (APITS Ltd.) demande à tous les annonceurs de fournir des informations correctes, il ne vérifie pas les informations fournies et ne peut être tenu responsable pour quelque erreur que ce soit. Aplaceinthesun.com recommande de solliciter un avis juridique indépendant avant tout achat de bien immobilier à l'étranger.