Premium New development

Terrain à vendre à Agios Nikolaos

Agios Nikolaos, Lasithi, Crète, Grèce

€155 000  [£135 786]

Terrain à vendre à Agios Nikolaos

Agios Nikolaos, Lasithi, Crète, Grèce

€155 000  [£135 786]

Détails du bien immobilier


  • Chambres: 0
  • Salles de bain: 0

Description complète


Building plot, nicely positioned in a serene location among pine trees and on gradual sloping land. From this point the views of the sea, the surrounding countryside and the mountains are truly amazing.

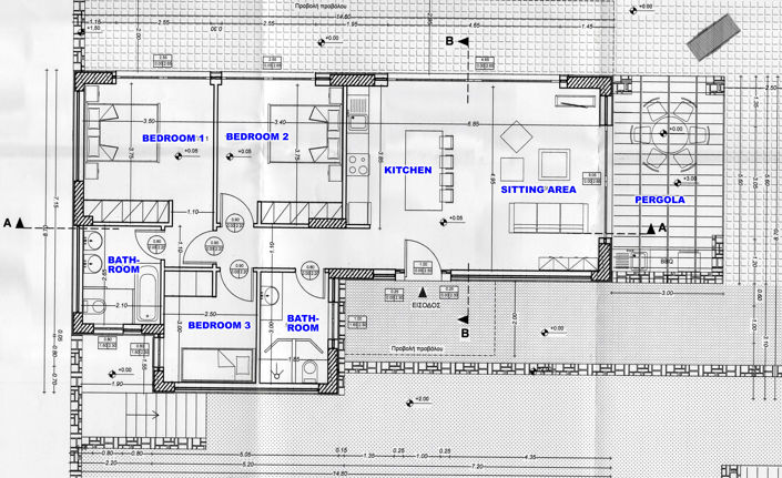
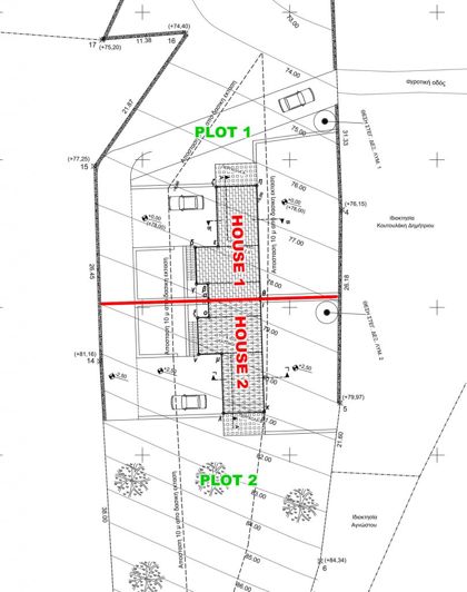
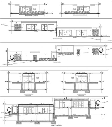
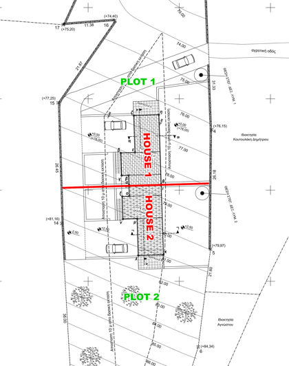
It is 4270 and already has the building pre-approval for two nice semi-detached bungalows. Each bungalow features 103 m2 of ground floor area + 103 m2 basement + veranda with pergola + private parking.

It is also possible to make a private swimming pool in front of each unit (not incl. in the current planning).

The plot has road access and services like electricity, water and telephone lines with broadband internet are nearby (100 m) and easy to connect to.

All the necessary documents to apply for a building licence are available.

Less than 2 kilometers from the village of Istron - famous for its sandy beaches, and about 10 kilometers from the tourist resort Agios Nikolaos.

The international airport of Heraklion is about a 45-minute drive from here.

The village of Istron has supermarkets, taverns, bars, bakers etc that are open all year round.
There is a good bus service to Agios Nikolaos, Heraklion, Ierapetra and Siteia.

Agios Nikolaos is the capital of the county Lasithi and is located at the Mirabello Bay, north-east Crete, only 45 mins away from the international airport of Heraklion.
Geographically the town is well protected from strong winds allowing sea sports and swimming nearly all year round.
Although Agios Nikolaos has a population of less than 20,000 it has several banks, supermarkets, shops of every kind, doctors, a modern hospital of high standard, public swimming pool and tennis courts, yacht marina, harbour, cinema, theatre, gyms, a 9-hole golf course, schools ranging from nurseries to 6-level high school and generally all the amenities you would expect to find in a modern European town.
The microclimate is one of the best in Greece and the moderate temperatures rarely exceed 30c in summer or fall below 15c in wintertime. This wonderful dry climate together with the natural beauty of the area has attracted most of the high class hotels of Greece to operate here.Un magnifique terrain, situé dans un endroit calme au milieu des pins et les terrains en pente progressive. De ce point les vues sur la mer et la campagne environnante sont vraiment étonnants.

La parcelle a tous les documents nécessaires pour demander un permis de construire.

L'intrigue est moins de 2 kilomètres du village de Istron - célèbre pour ses plages de sable fin, et à environ 10 kilomètres de la station touristique Aghios Nikolaos.

* Les mesures terrestres 4300sqm.
* Une maison ou maisons de jusqu'à 200m² plus sous-sol peuvent être construits sur ce terrain.
* L'électricité et l'eau sont à proximité.
* L'accès routier.

Le village de Istron a des supermarchés, des tavernes, des bars, boulangerie, etc qui sont ouverts toute l'année.

Il y a un bon service de bus à Aghios Nikolaos, Heraklion, Irapetra et Siteia.

Agios Nikolaos est la capitale du comté de Lassithi et est situé à la baie de Mirabello, au nord-est de la Crète, à seulement 45 minutes de l'aéroport international d'Héraklion.

Géographiquement la ville est bien protégée des vents forts permettant les sports nautiques et la natation presque toute l'année.

Bien que Agios Nikolaos a une population de moins de 20.000 il a une plusieurs banques, supermarchés, magasins de tout genre, les médecins, un hôpital moderne de haut standing, piscine publique et des courts de tennis, port de plaisance, port, cinéma, théâtre, salles de sport, un parcours de golf de 9 trous, écoles allant de pépinières à 6 niveau secondaire et généralement toutes les commodités que vous attendez à trouver dans une ville européenne moderne.

Le microclimat est l'un des meilleurs en Grèce et les températures modérées dépassent rarement 30c en été ou à l'automne ci-dessous 15c en hiver. Ce climat sec merveilleux ensemble avec la beauté naturelle de la région a attiré la plupart des hôtels de grande classe de la Grèce à opérer ici.
Plus

La carte peut ne pas indiquer l'emplacement exact

Cette annonce immobilière (réf: 5D-PLVAT10i) est fournie par Buy and Sell Estate Agency et ne constitue pas nécessairement une description précise d’un bien particulier. Bien que aplaceinthesun.com (APITS Ltd.) demande à tous les annonceurs de fournir des informations correctes, il ne vérifie pas les informations fournies et ne peut être tenu responsable pour quelque erreur que ce soit. Aplaceinthesun.com recommande de solliciter un avis juridique indépendant avant tout achat de bien immobilier à l'étranger.