Premium New development

Villa de 4 chambres à vendre à Faro City

Faro City, Algarve, Portugal

€1 700 000  [£1 503 228]

Villa de 4 chambres à vendre à Faro City

Faro City, Algarve, Portugal

€1 700 000  [£1 503 228]

Détails du bien immobilier


  • Chambres: 4
  • Salles de bain: 4
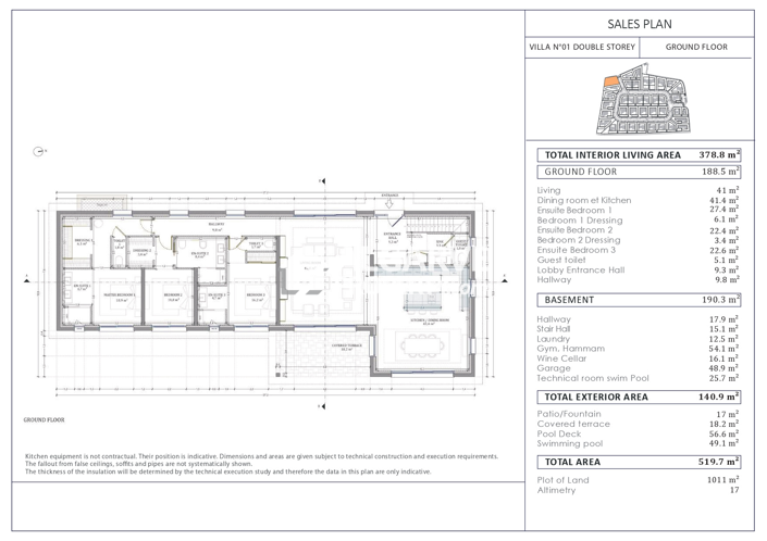
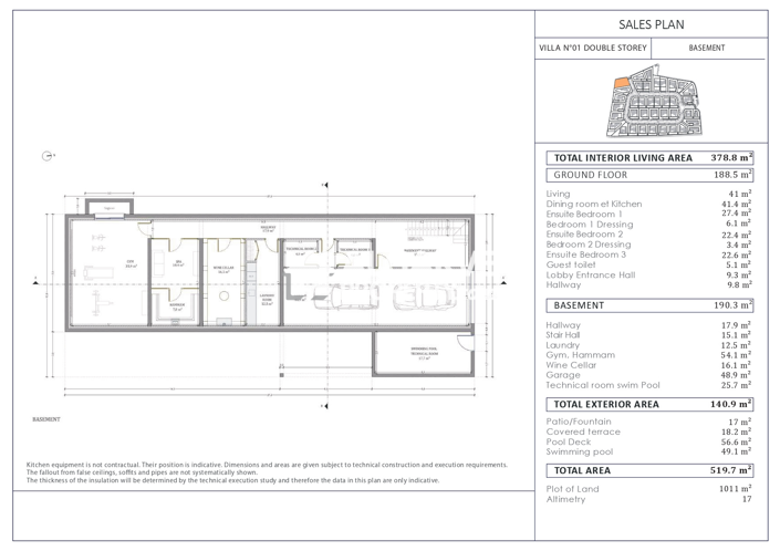
  • Surface du terrain: 1011 m2
  • Surface habitable: 454,8 m2

Description complète


Cette luxueuse villa de trois chambres est située au cur de Faro, dans le premier complexe de villas privées de Faro. Ce complexe exclusif, qui surplombe la lagune sereine de Ria Formosa, s'étend sur plus de 5 hectares de terrain clôturé immaculé, offrant une oasis de tranquillité à quelques minutes de marche du centre-ville animé et des superbes plages.

La villa orientée sud-est a une superficie de 454,80 m² et un terrain de 1011 m². Elle comprend sa propre piscine privée avec une terrasse au milieu de jardins méditerranéens luxuriants. La villa dispose de vastes espaces élégamment conçus, garantissant un grand espace et un grand confort.

Cette villa est l'incarnation du luxe moderne :

Des équipements inégalés, la villa comprend :
- 3 Chambres avec salles de bains attenantes
- Cuisine entièrement équipée avec des appareils Samsung, LG ou Bosch de haute qualité.
- Une cave à vin
- Espace de remise en forme et Hamman
- Des intérieurs spacieux et ensoleillés avec de grandes portes d'entrée en verre
- Sol en travertin et finitions en marbre dans les salles de bains
- Accès sécurisé avec vidéophone, concierge et surveillance vidéo
- Propriété entièrement clôturée avec portails électriques et portes de garage automatiques

Des espaces extérieurs élégants
Votre retraite privée se prolonge à l'extérieur par des cours magnifiquement aménagées avec de superbes fontaines en pierre et en mosaïque. Profitez de la flore méditerranéenne, notamment des oliviers, des bougainvilliers et de la lavande, le tout sur fond de vues à couper le souffle sur la Ria Formosa. La piscine en béton armé de la villa peut être personnalisée avec un choix de couleurs de mosaïques et de systèmes de filtration (sel ou chlore).

Situation privilégiée
La proximité du centre-ville de Faro et des belles plages est exceptionnelle, combinant le meilleur des deux mondes - une retraite paisible avec un accès facile à la vie urbaine animée et à la beauté naturelle. L'emplacement stratégique de la propriété et ses équipements luxueux en font le choix idéal pour ceux qui recherchent un mode de vie à la fois serein et connecté.

Le complexe est un havre de paix et de luxe, un endroit pour se détendre, rêver et profiter des bonnes choses de la vie.

Pour en savoir plus sur cette fantastique villa ou pour organiser une visite privée, veuillez nous contacter. Ne manquez pas l'occasion de faire partie de cette communauté exclusive au cur de l'Algarve !

AlgarveProperty.com - AMI : 2196 - T. : 00351 289310310
Plus

La carte peut ne pas indiquer l'emplacement exact

Cette annonce immobilière (réf: EM248071N) est fournie par AlgarveProperty.com et ne constitue pas nécessairement une description précise d’un bien particulier. Bien que aplaceinthesun.com (APITS Ltd.) demande à tous les annonceurs de fournir des informations correctes, il ne vérifie pas les informations fournies et ne peut être tenu responsable pour quelque erreur que ce soit. Aplaceinthesun.com recommande de solliciter un avis juridique indépendant avant tout achat de bien immobilier à l'étranger.