Premium New development

Terrain à vendre à Sao Bras de Alportel

Sao Bras de Alportel, Algarve, Portugal

€350 000  [£305 570]

Terrain à vendre à Sao Bras de Alportel

Sao Bras de Alportel, Algarve, Portugal

€350 000  [£305 570]

Détails du bien immobilier


  • Chambres: 0
  • Salles de bain: 0
  • Surface du terrain: 5000 m2

Caractéristiques


  • Double Verre
  • Certificat de performance énergétique – Exempt

Description complète


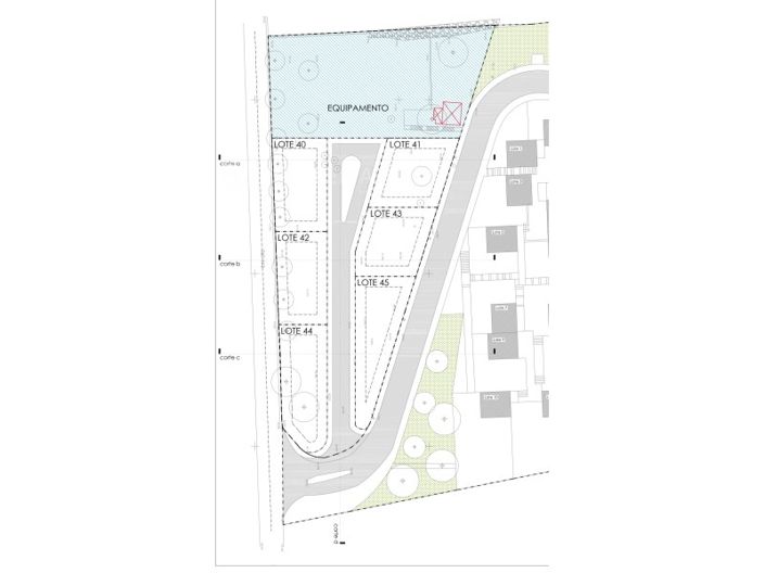
Terrain de 5000 m2 avec un projet de lotissement approuvé pour la construction de 6 villas à São Brás de Alportel.
Les parcelles sont vendues ensemble et ont des superficies comprises entre 391 m2 et 470 m2 avec des zones d'implantation de 150 m2.
Elles font partie d'une urbanisation existante avec vue sur les montagnes.
Une excellente opportunité d'investissement.
Pour plus d'informations, n'hésitez pas à nous contacter.
Traduit avec DeepL.com (version gratuite)
Performance Énergétique: Exempt
#ref: T989
Plus

La carte peut ne pas indiquer l'emplacement exact

Cette annonce immobilière (réf: T989) est fournie par Premier Villas et ne constitue pas nécessairement une description précise d’un bien particulier. Bien que aplaceinthesun.com (APITS Ltd.) demande à tous les annonceurs de fournir des informations correctes, il ne vérifie pas les informations fournies et ne peut être tenu responsable pour quelque erreur que ce soit. Aplaceinthesun.com recommande de solliciter un avis juridique indépendant avant tout achat de bien immobilier à l'étranger.