Premium New development

Villa de 3 chambres à vendre à Paphos

Paphos, Paphos, Chypre

€475 000  [£417 399]

Villa de 3 chambres à vendre à Paphos

Paphos, Paphos, Chypre

€475 000  [£417 399]

Détails du bien immobilier


  • Chambres: 3
  • Salles de bain: 3
  • Surface du terrain: 236 m2
  • Surface habitable: 138 m2

Description complète


Boutique Luxury 3-Bedroom Villa in Geroskipou, Paphos
? A modern boutique villa in one of Paphos’ most desirable neighbourhoods, just minutes from the beach, international schools and the city centre. High ceilings, sleek open-plan interiors and sustainable design create the perfect blend of comfort and style.

?? Off-plan villa — Delivery: September 2027
?? Price is subject to VAT (5% VAT is applicable, criteria apply)

Villa Features
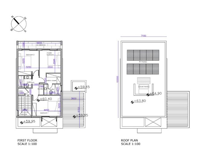
Bedrooms 3
Bathrooms 3
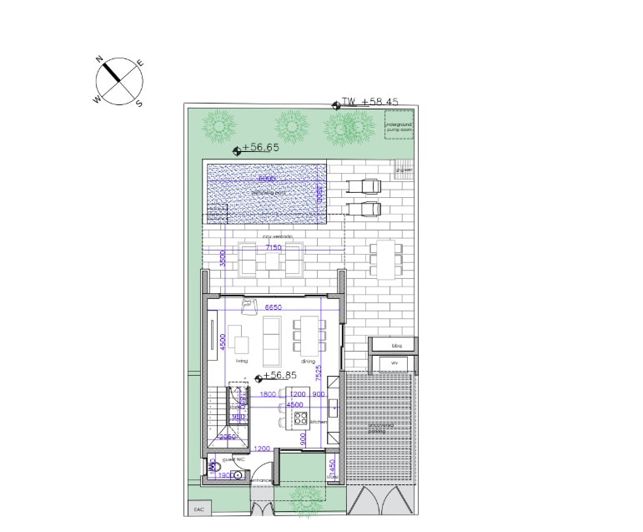
Plot size: 236 m²
Total built area: 138 m²
Covered verandas: 31.5 m²
Covered parking: 20 m²
Storage: 1.5 m²

Key Features
High ceilings (3.1 m) and tall doors (2.4 m) in all rooms
Private parking for two cars with electric gates
Outdoor barbecue & entertainment area
Optional private swimming pool
Energy Efficiency & Sustainability
Full thermal insulation – 8 cm polystyrene
Energy-efficient slimline aluminium windows & doors
Energy Efficiency Class A+
Photovoltaic system (4.8 kW)
Provision for electric car charger
Climate Control & Comfort
Underfloor heating with separate zones per floor
Concealed VRV cooling system

Location Highlights
Beach – 3.4 km
Paphos International Airport – 10 km
Supermarket – 1.2 km
International School – 1.4 km
Hospital – 6 km

?? Investment Benefits
Eligible for Cyprus Permanent Residency (fast-track with €300,000+ investment)
Lifetime residency for investor, spouse & children under 25
Easy access to EU lifestyle & travel benefits
Tax advantages: 12.5% corporate tax, 0% inheritance tax, no tax on foreign income/dividends/capital gains
High rental demand & capital appreciation in one of Paphos’ fastest-growing residential areas

Each home features sleek open-plan living beneath 3.10 m high ceilings, with floor-to-ceiling glass doors flooding interiors with light. Premium amenities include underfloor heating zoned per floor, a VRV cooling system, full thermal insulation, and a photovoltaic system — everything is included in the price.

Additional Features NOT INCLUDED in the price
Swimming pool: € 20,000 + VAT
Basic Furniture Package: € 35,000 + VAT
Premium Furniture package: € 45,000 + VAT
Plus

La carte peut ne pas indiquer l'emplacement exact

Cette annonce immobilière (réf: OLH-OH-V12) est fournie par Sunshine Luxury Villas et ne constitue pas nécessairement une description précise d’un bien particulier. Bien que aplaceinthesun.com (APITS Ltd.) demande à tous les annonceurs de fournir des informations correctes, il ne vérifie pas les informations fournies et ne peut être tenu responsable pour quelque erreur que ce soit. Aplaceinthesun.com recommande de solliciter un avis juridique indépendant avant tout achat de bien immobilier à l'étranger.