Premium New development
Retour aux Résultats

Villa de 3 chambres à vendre à Moraira

Moraira, Alicante, Région de Valence, Espagne

€1 495 000  [£1 301 471]

Villa de 3 chambres à vendre à Moraira

Moraira, Alicante, Région de Valence, Espagne

€1 495 000  [£1 301 471]

Détails du bien immobilier


  • Chambres: 3
  • Salles de bain: 2
  • Surface du terrain: 1350 m2
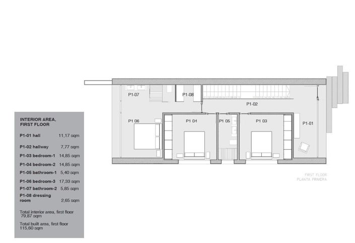
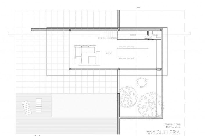
  • Surface habitable: 193 m2

Description complète


Projet de villa moderne avec piscine à vendre à Moraira El Portet à seulement 5 minutes en voiture de la plage de sable, El Portet. Le projet se compose de deux hauteurs. Un grand volume au premier étage contient le programme du soir.
Le programme de jour est situé au rez-de-chaussée diaphane, articulé avec un patio intérieur de 38 m2 qui peut être relié ou déconnecté de la zone jour selon les besoins, grâce à une porte coulissante. Il dispose d’une terrasse de 100 m2 et d’une piscine privée de 10,00 x 3,5 m.
Il dispose également de conduits de climatisation (chaud / froid) dans toutes les chambres avec contrôle indépendant dans chaque pièce. Menuiserie de aluminiu avec rupture de pont thermique et double vitrage sous émissif. Sol en porcelaine gris ciment.
Notre architecte Dalia Alba
Notre architecte d'intérieur Luna Alba - Lemon Design Studio
Design Villas Moraira a sa propre équipe de construction
Plus

La carte peut ne pas indiquer l'emplacement exact

Cette annonce immobilière (réf: SLV32-1801W) est fournie par Sunlife Villas et ne constitue pas nécessairement une description précise d’un bien particulier. Bien que aplaceinthesun.com (APITS Ltd.) demande à tous les annonceurs de fournir des informations correctes, il ne vérifie pas les informations fournies et ne peut être tenu responsable pour quelque erreur que ce soit. Aplaceinthesun.com recommande de solliciter un avis juridique indépendant avant tout achat de bien immobilier à l'étranger.