Premium New development
Retour aux Résultats

Villa de 4 chambres à vendre à Almancil

Almancil, Algarve, Portugal

€1 899 000  [£1 653 173]

Villa de 4 chambres à vendre à Almancil

Almancil, Algarve, Portugal

€1 899 000  [£1 653 173]

Détails du bien immobilier


  • Chambres: 4
  • Salles de bain: 5
  • Surface du terrain: 865 m2
  • Surface habitable: 360 m2

Description complète


Venez découvrir cette villa moderne, située à Escanxinas, tout près du centre dAlmancil et à quelques minutes seulement des magnifiques plages de Quarteira.

Avec ses 4 chambres toutes en suite et ses 5 salles de bain, cette superbe propriété offre une généreuse surface de 360 m² sur un terrain de 865 m².

En entrant, vous serez accueillis par une architecture moderne aux plafonds hauts, procurant une sensation despace et de luminosité.
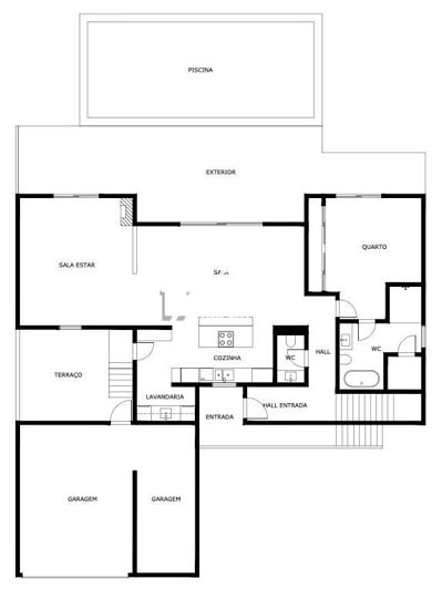
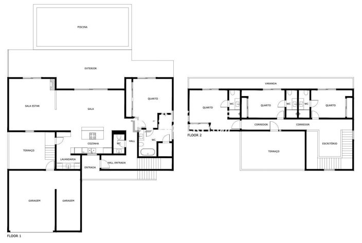
Au rez-de-chaussée se trouvent une chambre en suite, une salle de bain pour les invités, un salon avec cheminée, ainsi quune seconde pièce de vie avec cuisine intégrée donnant sur le vaste jardin. Ce niveau comprend également un grand cellier, une buanderie et un patio extérieur menant au garage fermé, pouvant accueillir au moins deux véhicules et déjà équipé pour la recharge électrique.

Dans le jardin, vous trouverez une grande piscine à débordement deau salée, une douche extérieure et en plus dun vaste espace vert un terrain de pétanque aux dimensions officielles.

À létage, vous accéderez à un espace polyvalent pouvant servir de bureau, une terrasse côté entrée et trois chambres en suite partageant une seconde terrasse orientée vers le jardin et la piscine.

Toutes les chambres disposent de placards encastrés. La propriété est équipée de panneaux solaires et photovoltaïques, dun système dalarme, daspiration centralisée, de climatisation, de volets électriques et de domotique.

Cette villa bénéficie également dune certification énergétique de classe A+, soulignant son efficacité et sa durabilité remarquables.

Située à seulement 4 km de la plage et à proximité des centres commerciaux et des golfs, elle offre un emplacement privilégié pour profiter pleinement du meilleur de lAlgarve.

Venez découvrir tout le charme et la tranquillité du quartier dAlmancil le lieu idéal pour savourer une vie paisible et luxueuse au sud du Portugal.

Ne manquez pas cette opportunité unique venez visiter cette villa dexception!

AlgarveProperty.com - AMI: 2196 - T.: 00351 289310310
Plus

La carte peut ne pas indiquer l'emplacement exact

Cette annonce immobilière (réf: V258730P) est fournie par AlgarveProperty.com et ne constitue pas nécessairement une description précise d’un bien particulier. Bien que aplaceinthesun.com (APITS Ltd.) demande à tous les annonceurs de fournir des informations correctes, il ne vérifie pas les informations fournies et ne peut être tenu responsable pour quelque erreur que ce soit. Aplaceinthesun.com recommande de solliciter un avis juridique indépendant avant tout achat de bien immobilier à l'étranger.