Premium New development

Appartement de 1 chambre à vendre à Portimao

Portimao, Algarve, Portugal

€450 000  [£395 431]

Appartement de 1 chambre à vendre à Portimao

Portimao, Algarve, Portugal

€450 000  [£395 431]

Détails du bien immobilier


  • Chambres: 1
  • Salles de bain: 1
  • Surface habitable: 61,2 m2

Description complète


Set in one of the Algarves most popular coastal destinations, this development combines lifestyle, location, and investment potential in a prime beachfront setting. It offers a rare opportunity to acquire fully renovated apartments with excellent rental potential and year-round appeal.

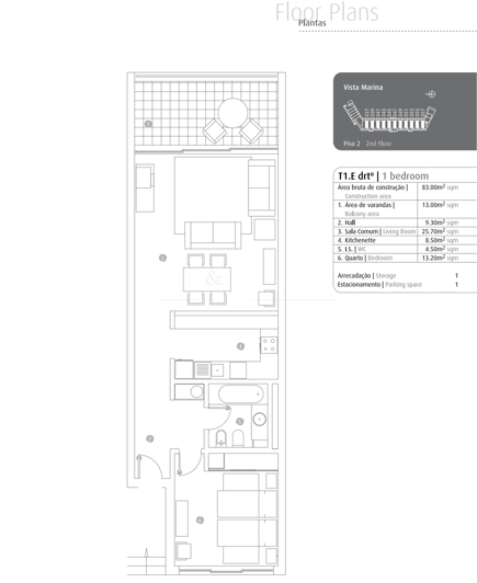
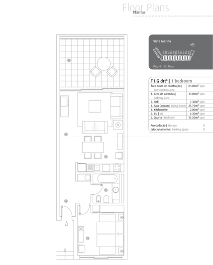
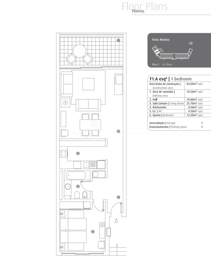
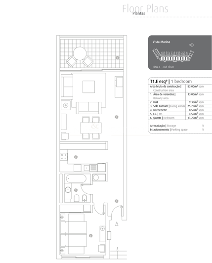
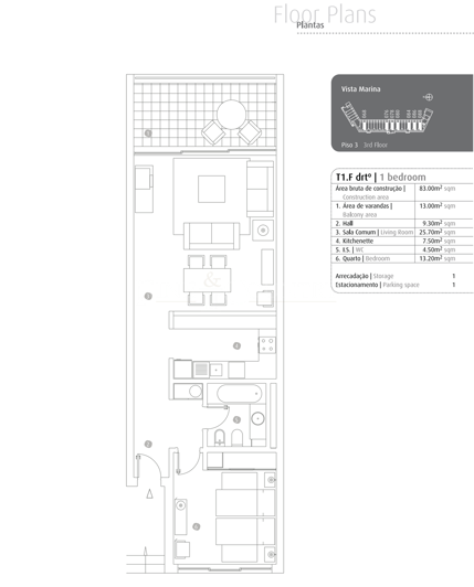
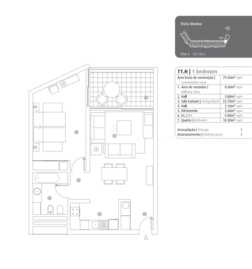
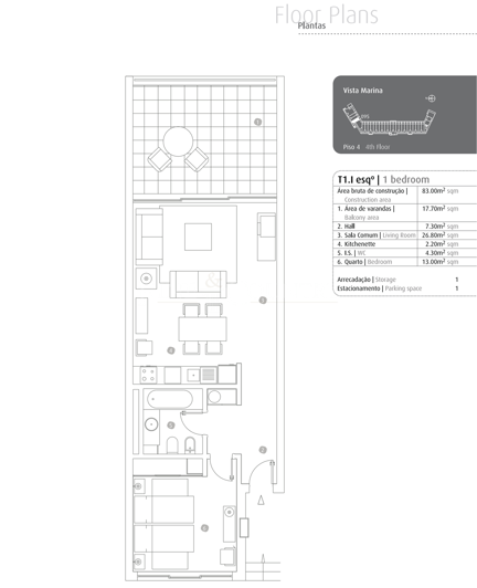
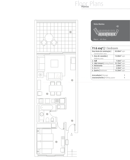
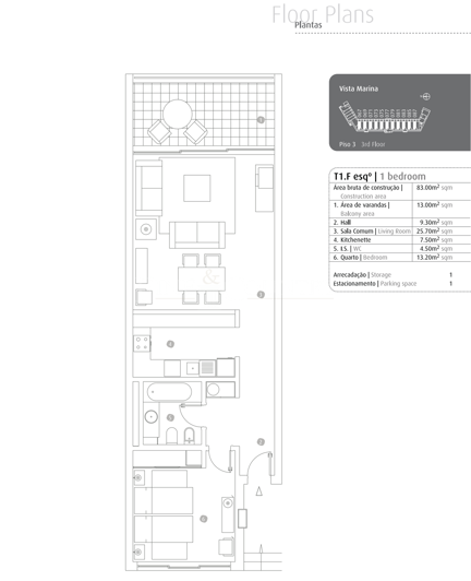
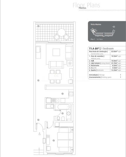
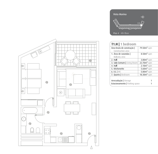
Located in Praia da Rocha, Portimão, overlooking the local marina, the development includes eight 1-bedroom apartments, each with 81 sqm of build area, including balconies, and two spacious 2-bedroom units measuring 111 sq m and 138 sq m, respectively.

Designed for comfort and convenience, the complex includes an outdoor swimming pool surrounded by landscaped gardens, a heated indoor pool, a full-service spa, a gym, and 24-hour reception.

All apartments feature generous outdoor space, private parking, and storage rooms and are sold fully furnished with modern finishes, new appliances, air conditioning, and double glazing.

Ideal as a full-time residence, a lock-up-and-leave holiday home, or an income-generating rental property. A rental return guarantee is also available for investors seeking steady yields.

* The feature(s) equipment(s) mentioned in this description are subject to verification and agreement between the vendors and buyers.

Fine & Country Algarve is part of the international network of F&C offices in over 300 locations worldwide, we have four offices in the Algarve covering the whole region from east to west. We also work closely with the Fine & Country offices elsewhere in Portugal and internationally. In the Algarve, Fine & Country has a vast portfolio of properties for sale and a dedicated team of professionals with in-depth market knowledge.

EPC: C - REF: FC980VC-CQ
Plus

La carte peut ne pas indiquer l'emplacement exact

Cette annonce immobilière (réf: FC980VC-CQ) est fournie par Fine and Country Algarve et ne constitue pas nécessairement une description précise d’un bien particulier. Bien que aplaceinthesun.com (APITS Ltd.) demande à tous les annonceurs de fournir des informations correctes, il ne vérifie pas les informations fournies et ne peut être tenu responsable pour quelque erreur que ce soit. Aplaceinthesun.com recommande de solliciter un avis juridique indépendant avant tout achat de bien immobilier à l'étranger.