Premium New development

Maison de ville de 5 chambres à vendre à Tavira

Tavira, Algarve, Portugal

€745 000  [£656 735]

Maison de ville de 5 chambres à vendre à Tavira

Tavira, Algarve, Portugal

€745 000  [£656 735]

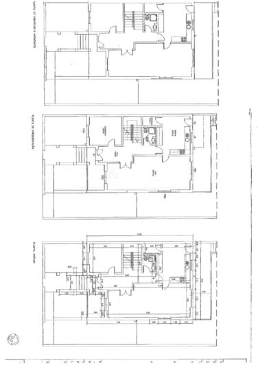
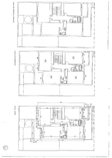
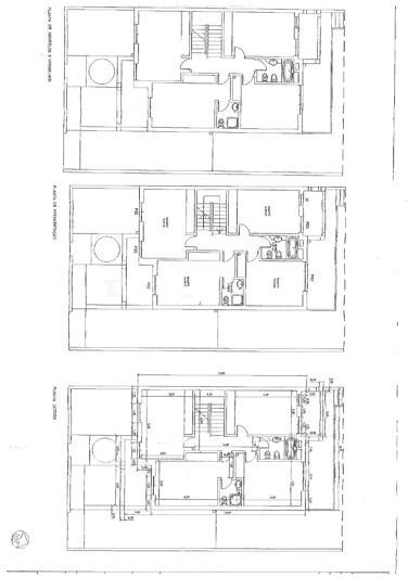
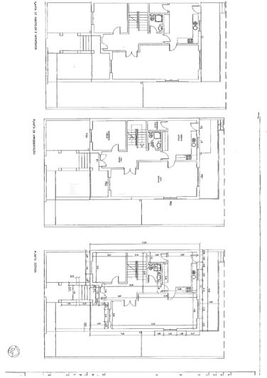
Détails du bien immobilier


  • Chambres: 5
  • Salles de bain: 4
  • Surface habitable: 311 m2

Description complète


Située dans un quartier résidentiel prestigieux de Tavira, cette villa mitoyenne de cinq chambres offre léquilibre parfait entre confort moderne et vie familiale. Récemment rénovée et vendue meublée, elle combine de généreux espaces intérieurs avec des extérieurs polyvalents, constituant une excellente opportunité pour une résidence principale, une maison secondaire ou un investissement en Algarve.

À lintérieur, la villa dispose dun salon et dune salle à manger ouverts et lumineux, ainsi que dune cuisine moderne équipée dun îlot central et dappareils électroménagers de qualité. Les cinq chambres sont spacieuses et les salles de bains récemment rénovées, avec un design épuré et élégant qui rehausse le quotidien. La propriété est prête à emménager, avec une disposition idéale pour les grandes familles ou les invités.

Un atout majeur est le vaste sous-sol/garage, offrant un espace idéal pour créer une salle de sport privée, une salle de cinéma, une suite dinvités ou un espace familial supplémentaire. À lextérieur, la terrasse de 230 m² propose une belle surface pour recevoir ou se détendre, avec la possibilité dajouter une piscine privée pour enrichir le style de vie.

Cette propriété se distingue à Tavira par sa flexibilité, sa taille et son emplacement recherché, à quelques minutes à pied du centre-ville, des plages et des commodités. Que ce soit comme résidence familiale polyvalente, pour accueillir des invités ou acquérir une villa spacieuse dans lune des zones les plus prisées de lAlgarve, il sagit dune opportunité rare.

Les caractéristiques et équipements mentionnés sont soumis à accord et vérification entre le vendeur et lacheteur

Classe Énergétique: C

Emplacement prestigieux à Tavira
Villa mitoyenne de 5 chambres, vendue meublée
Rénovée récemment avec des finitions modernes
Salon et cuisine ouverts avec îlot central
Grand sous-sol/garage avec potentiel pour salle de sport, cinéma ou suite
Quatre salles de bains au design contemporain
Surface construite supérieure à 300 m²
Terrasse extérieure privée de 230 m² avec potentiel piscine
À distance de marche du centre-ville de Tavira et des plages
Idéale pour vie familiale, familles nombreuses ou investissement
Plus

La carte peut ne pas indiquer l'emplacement exact

Cette annonce immobilière (réf: FC044TVQ) est fournie par Fine and Country Algarve et ne constitue pas nécessairement une description précise d’un bien particulier. Bien que aplaceinthesun.com (APITS Ltd.) demande à tous les annonceurs de fournir des informations correctes, il ne vérifie pas les informations fournies et ne peut être tenu responsable pour quelque erreur que ce soit. Aplaceinthesun.com recommande de solliciter un avis juridique indépendant avant tout achat de bien immobilier à l'étranger.