Premium New development
Retour aux Résultats

Villa de 4 chambres à vendre à Loule

Loule, Algarve, Portugal

€1 300 000  [£1 131 714]

Villa de 4 chambres à vendre à Loule

Loule, Algarve, Portugal

€1 300 000  [£1 131 714]

Détails du bien immobilier


  • Chambres: 4
  • Salles de bain: 4
  • Consommation: A
  • Surface du terrain: 310 m2

Description complète


Nous vous présentons cette magnifique maison de ville de 4 chambres à coucher, à l'architecture moderne et à la construction neuve, située dans le prestigieux Triangle d'Or de l'Algarve, à Quarteira.

Répartie sur quatre étages, cette propriété allie élégance, confort et technologie, offrant un style de vie distinctif dans le sud du Portugal.

Au rez-de-chaussée, on trouve un grand et lumineux salon ouvert, intégré à une cuisine entièrement équipée avec des appareils électroménagers de haute qualité. Ce niveau comprend également une buanderie, un bureau - qui peut facilement être converti en chambre supplémentaire - une salle de bains et un garage privé pouvant accueillir une voiture.

Le premier étage est consacré à la partie privée, avec trois chambres, dont une suite parentale, et une salle de bains supplémentaire. Toutes les chambres ont un accès direct à une terrasse spacieuse, idéale pour se détendre en plein air.

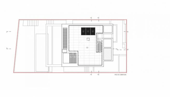
Le deuxième étage révèle un toit exclusif, parfait pour profiter du climat doux et des longues heures d'ensoleillement caractéristiques de l'Algarve, avec des vues dégagées et une intimité totale.

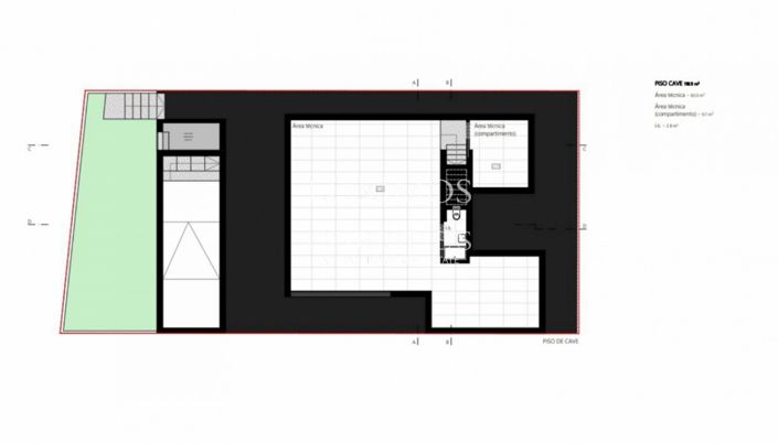
Au sous-sol, un espace multifonctionnel avec salle de bains offre de multiples possibilités d'utilisation, que ce soit comme salle de sport, salle de jeux ou espace de loisirs.

À l'extérieur, la villa dispose d'une agréable terrasse avec barbecue, d'une piscine privée et d'un jardin facile à entretenir, créant ainsi un environnement idéal pour des moments de convivialité et de détente.

Équipée des dernières solutions technologiques, cette maison garantit un maximum de confort et d'efficacité énergétique : elle dispose de panneaux solaires, d'un chauffage par le sol, de l'air conditionné et d'une isolation thermique de haute qualité.

Située dans une urbanisation tranquille et sûre, cette propriété offre un équilibre parfait entre intimité, commodité et proximité des plages et des services. À seulement 5 minutes des plus belles plages et à 15 minutes de la marina de Vilamoura, c'est le choix idéal pour ceux qui recherchent un style de vie sophistiqué, moderne et exclusif au cœur de l'Algarve.
CARACTÉRISTIQUES:
Surface de terrain: 310 m2
Taille de déploiement: 111 m2
Taille de construction: 170 m2
Chambres: 4
Salles de bain: 4
Garage: 1
Efficacité énergétique: A+
FONCTIONNALITÉS:
Maison de ville

4 chambres à coucher

Piscine privée

Garage privé

4 étages

Sous-sol polyvalent

Toiture

Panneaux solaires

5 minutes de la plage
LUXIMOS Christie’s voit le jour sur la base de cette vaste expérience, de cette tradition et de cette innovation technologique, tout en respectant les normes les plus élevées d'éthique, de discrétion, d'intégrité et de professionnalisme en contribuant à la reconnaissance et à la croissance durable de la marque, mais aussi à la satisfaction de nos clients, en trouvant les solutions immobilières possédant les caractéristiques faisant la différence qu'ils recherchent.
LIc AMI 9063
Plus

La carte peut ne pas indiquer l'emplacement exact

Cette annonce immobilière (réf: 1LS02276) est fournie par LUXIMOS Christie´s International Real Estate et ne constitue pas nécessairement une description précise d’un bien particulier. Bien que aplaceinthesun.com (APITS Ltd.) demande à tous les annonceurs de fournir des informations correctes, il ne vérifie pas les informations fournies et ne peut être tenu responsable pour quelque erreur que ce soit. Aplaceinthesun.com recommande de solliciter un avis juridique indépendant avant tout achat de bien immobilier à l'étranger.