Premium New development

Villa de 3 chambres à vendre à Ciudad Quesada

Ciudad Quesada, Alicante, Région de Valence, Espagne

€1 050 000  [£916 710]

Villa de 3 chambres à vendre à Ciudad Quesada

Ciudad Quesada, Alicante, Région de Valence, Espagne

€1 050 000  [£916 710]

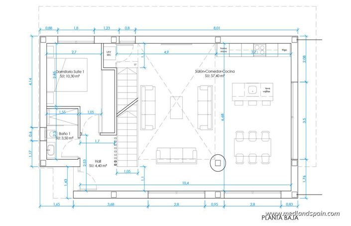
Détails du bien immobilier


  • Chambres: 3
  • Salles de bain: 3
  • Surface du terrain: 558 m2
  • Surface habitable: 155 m2

Description complète


Projet de villas exclusives à Ciudad Quesada, une urbanisation dynamique de la Costa Blanca, connue pour son climat chaud, sa culture espagnole traditionnelle et sa grande communauté d'Européens. La ville offre une sélection complète de services quotidiens, y compris des supermarchés, des magasins, des bars et des restaurants, ainsi qu'une variété d'options de divertissement. Les amateurs d'activités de plein air trouveront à proximité de la ville des plages magnifiques, des parcours de golf, un parc aquatique, des courts de tennis et de paddle, ainsi que des sentiers de randonnée et des pistes cyclables dans le parc naturel de La Mata.Les villes voisines de Guardamar del Segura, Torrevieja et Orihuela Costa sont facilement accessibles grâce à leur réseau routier exceptionnel, qui permet également un accès pratique aux aéroports d'Alicante et de Murcie.Découvrez ce programme exclusif de villas modernes, alliant élégance, luxe pratique et confort. Ces superbes résidences disposent de trois chambres avec salle de bains et d'un salon ouvert avec un fantastique plafond à double hauteur, créant un environnement spacieux et ouvert avec des vues spectaculaires sur la lagune.La terrasse du salon est parfaite pour recevoir des invités ou se détendre au bord de la piscine privée et du jardin. Pour ajouter à la polyvalence de la propriété, un sous-sol polyvalent offre des possibilités infinies, y compris une élégante cour anglaise qui permet à la lumière naturelle de pénétrer.Pour un maximum de confort, les villas sont équipées de la climatisation, de salles de bains entièrement équipées avec chauffage au sol, de stores électriques, d'un éclairage intérieur et extérieur et d'un emplacement de stationnement privé sur la propriété. Il est possible de personnaliser les villas moyennant un supplément de prix, par exemple en transformant le sous-sol en salle de cinéma, salle de sport, bureau ou appartement d'amis.Ces maisons représentent une expérience de vie exclusive et sophistiquée, entourée de toutes les commodités, idéale pour ceux qui recherchent un style de vie détendu au soleil.
Plus

La carte peut ne pas indiquer l'emplacement exact

Cette annonce immobilière (réf: N-6559347-20251008-2025-2) est fournie par Medland Spain et ne constitue pas nécessairement une description précise d’un bien particulier. Bien que aplaceinthesun.com (APITS Ltd.) demande à tous les annonceurs de fournir des informations correctes, il ne vérifie pas les informations fournies et ne peut être tenu responsable pour quelque erreur que ce soit. Aplaceinthesun.com recommande de solliciter un avis juridique indépendant avant tout achat de bien immobilier à l'étranger.