Premium New development

Villa de 4 chambres à vendre à Limassol

Limassol, Limassol, Chypre

€698 425  [£613 946]

Villa de 4 chambres à vendre à Limassol

Limassol, Limassol, Chypre

€698 425  [£613 946]

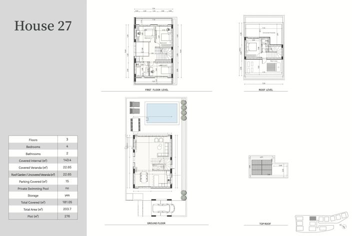
Détails du bien immobilier


  • Chambres: 4
  • Salles de bain: 3
  • Surface du terrain: 276 m2
  • Surface habitable: 143 m2

Description complète


Modern villa within a cosmopolitan development complex located in Germasogeia area, Limassol.

This development rests in a premium location between Kalogiroi and Mesovounia in Germasogeia, one of the classiest areas in Limassol. Just 1km from the sea!

Under construction
Price is subject to VAT
Completion Date: September 2026
The complex is defined by a fresh masterplan and clean-line architecture.

House features:
2 floors
Bedrooms- 4
Bathrooms - 3
Covered area - 143.4m2
Covered Veranda: 22.65 m2
Uncovered veranda - 22.65m2
Total covered- 181.05m2
Plot - 276m2

BENEFITS:
Peaceful residential location
Only 2 min drive to the sea
Residential complex with 28 houses
Contemporary, cleaned line design
Close proximity to private schools
High quality finishes

A cleverly-design development that is a perfect match for those who are in search to live in a comfortable, serene and picturesque community nearby the sea.

This development offers homes with comfortability in an affordable package.
The minimal architectural design that defines the entire development, with practical interiors, with good-sized plots and with an excellent proximity to the sea, this is the ideal place for family living or for real investment opportunities.

Finishes:
• High-quality ceramic tiles in living room
• Laminate flooring in bedrooms
• Quality ceramic tiles in bathrooms & toilets
• Double glazing aluminium window frames
• High quality entrance doors
• Provision for A/C split units in all rooms
• Sanitary wear from European brands
• High-quality kitchen and wardrobes from European brands
• Countertops made of artificial granite
• High ceilings (2.90 - 3.20m)

Plus

La carte peut ne pas indiquer l'emplacement exact

Cette annonce immobilière (réf: KG-CG27) est fournie par Sunshine Luxury Villas et ne constitue pas nécessairement une description précise d’un bien particulier. Bien que aplaceinthesun.com (APITS Ltd.) demande à tous les annonceurs de fournir des informations correctes, il ne vérifie pas les informations fournies et ne peut être tenu responsable pour quelque erreur que ce soit. Aplaceinthesun.com recommande de solliciter un avis juridique indépendant avant tout achat de bien immobilier à l'étranger.