Premium New development

Villa de 3 chambres à vendre à Paphos

Paphos, Paphos, Chypre

€750 000  [£657 376]

Villa de 3 chambres à vendre à Paphos

Paphos, Paphos, Chypre

€750 000  [£657 376]

Détails du bien immobilier


  • Chambres: 3
  • Salles de bain: 4
  • Surface du terrain: 303 m2
  • Surface habitable: 220 m2

Description complète


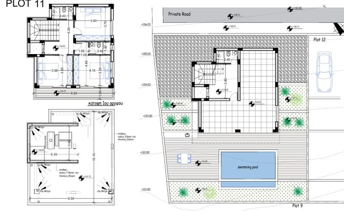
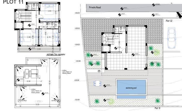
Modern 4 Bedroom Villa in Yeroskipou

Private development of 20 stylish villas on a quiet hill in Geroskipou, offering beautiful sea views and modern comfort. Each 3- or 4-bedroom home features underfloor heating, a VRF cooling system, and Class A energy efficiency—all on a good-sized plot with seamless indoor-outdoor living. Just minutes from Paphos and the coast, Golden Hills is ideal for those seeking a relaxed lifestyle or a smart investment in a prime location.

Price+Vat
delivery here months

Unit Info
Type Villa
Status Under Construction
Main Features
Bedrooms 4
Bathrooms 3
Areas
Internal Area 185 m²
Covered Verandas 33 m²
Total Area 219 m²
Plot Area 304 m²
Features
Parking Uncovered
Pool Private
Storage Yes
Energy Grade A
Heating & Cooling
Type VRF System

Plus

La carte peut ne pas indiquer l'emplacement exact

Cette annonce immobilière (réf: MEDGHV11) est fournie par Sunshine Luxury Villas et ne constitue pas nécessairement une description précise d’un bien particulier. Bien que aplaceinthesun.com (APITS Ltd.) demande à tous les annonceurs de fournir des informations correctes, il ne vérifie pas les informations fournies et ne peut être tenu responsable pour quelque erreur que ce soit. Aplaceinthesun.com recommande de solliciter un avis juridique indépendant avant tout achat de bien immobilier à l'étranger.