Premium New development

Propriété à vendre à Lagos

Lagos, Lagos, Algarve, Portugal

€400 000  [£348 827]

Propriété à vendre à Lagos

Lagos, Lagos, Algarve, Portugal

€400 000  [£348 827]

Détails du bien immobilier


  • Chambres: 0
  • Salles de bain: 0
  • Surface du terrain: 554 m2

Description complète


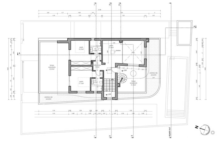
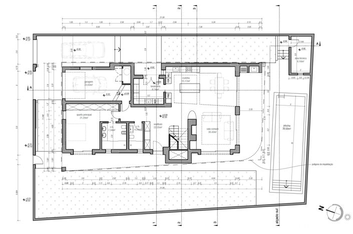
Construction exclusive Terrain avec projet Villa approuvé Porto de Mós, Lagos

Une occasion exceptionnelle de construire votre maison idéale dans l'un des quartiers côtiers en pleine croissance Lagos. Cet hôtel de 554 m2 Terrain est situé dans le quartier résidentiel recherché de Porto de Mós, à quelques pas de la plage. Le cadre est paisible et privé, mais à proximité de la ville Lagos, de la marina et à seulement 50 minutes de l'aéroport de Faro. Les détails:

Terrain Détails:
* Taille: 554 m2
* Construire: jusqu'à 350 m2
* Pression maximale: 230 m2
* Entièrement équipé d'électricité, d'eau et de drainage principal

La propriété comprend un projet architectural approuvé pour un Villa contemporain conçu pour combiner le style moderne avec le confort. L'aménagement s'étend sur deux niveaux, en tirant le meilleur parti de la lumière naturelle et de la vie en plein air.

Highlights du projet:
* espace de vie et de salle à manger lumineux et ouvert qui s'écoule sur des terrasses
* Cuisine équipée moderne
* 3 chambres doubles plus une mezzanine élégante
* 4 salles de bains
* Terrasses spacieuses, en partie couvertes pour une utilisation toute l'année
* Piscine privé
* Carport pour deux véhicules

Situé dans un quartier calme et en pleine croissance, ce Terrain est parfaitement adapté à un Investissement, une résidence permanente ou un XYZ12ZYZ de haute qualité
- here
Plus

*Certaines descriptions de biens immobiliers sur ce site sont traduites automatiquement par intelligence artificielle. Malgré tous nos efforts pour garantir leur exactitude, des erreurs ou des inexactitudes peuvent subsister. La version originale de l'annonce fait foi.

La carte peut ne pas indiquer l'emplacement exact

Cette annonce immobilière (réf: PL027) est fournie par Lagos Algarve Real Estate et ne constitue pas nécessairement une description précise d’un bien particulier. Bien que aplaceinthesun.com (APITS Ltd.) demande à tous les annonceurs de fournir des informations correctes, il ne vérifie pas les informations fournies et ne peut être tenu responsable pour quelque erreur que ce soit. Aplaceinthesun.com recommande de solliciter un avis juridique indépendant avant tout achat de bien immobilier à l'étranger.