Premium New development

Commercial à vendre à Tias

Tias, Lanzarote, Iles Canaries, Espagne

€125 000  [£109 563]

Commercial à vendre à Tias

Tias, Lanzarote, Iles Canaries, Espagne

€125 000  [£109 563]

Détails du bien immobilier


  • Chambres: 0
  • Salles de bain: 0
  • Surface habitable: 125 m2

Caractéristiques


  • Double Verre
  • Certificat de performance énergétique – En cours

Description complète


Espace commercial idéalement situé en plein centre-ville de Tías, avec un potentiel d'agrandissement.
Un local commercial spacieux d'environ 125 m² est à vendre, idéalement situé au cœur du centre commercial animé de Tías, à Lanzarote. Son emplacement privilégié, dans une zone à fort passage piétonnier et automobile, représente une excellente opportunité pour les entrepreneurs souhaitant implanter leur activité dans un lieu à forte visibilité, ainsi que pour les investisseurs recherchant un actif à fort potentiel de rentabilité.
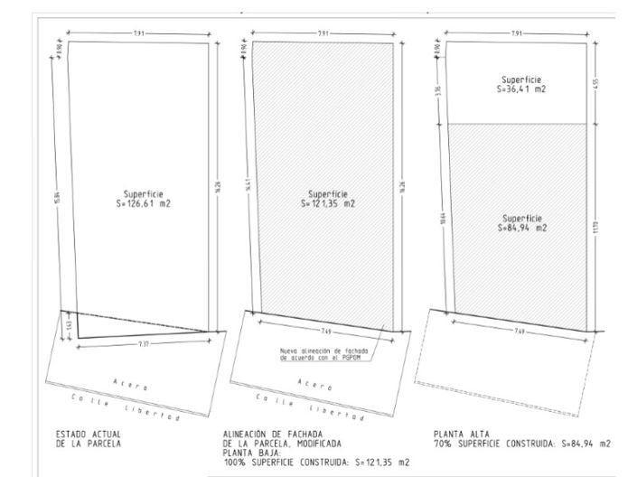
Actuellement, le local offre environ 106,37 m² de surface utile au rez-de-chaussée, offrant une grande flexibilité d'aménagement. Il comprend également une mezzanine d'environ 18,66 m² avec fenêtres donnant sur la rue, assurant lumière naturelle et ventilation. Cet espace supplémentaire est idéal pour des bureaux, du stockage ou comme espace annexe à l'activité principale du rez-de-chaussée.
L'un des principaux atouts de ce bien est la possibilité de rénovations et de changements d'usage, toujours dans le respect de la réglementation municipale en vigueur. Cette option permet au nouveau propriétaire d'agrandir considérablement la surface utile du bien : il serait possible d'obtenir une surface d'environ 107,48 m² construite au rez-de-chaussée et 75,24 m² construites à l'étage, plus 32,24 m² de terrasse extérieure, ce qui doublerait presque la capacité de l'espace et ouvrirait un éventail de nouvelles possibilités d'exploitation.
Grâce à sa façade donnant sur la rue principale, l'espace bénéficie d'une grande visibilité et offre de nombreuses possibilités d'installation de vitrines pour attirer l'attention du public. L'environnement, caractérisé par la présence de commerces, de cafés, de bureaux et de divers services, garantit un flux constant de clients potentiels et apporte une forte valeur ajoutée à l'investissement.
Cet espace offre non seulement une superficie importante dans un emplacement stratégique, mais aussi une grande flexibilité et une grande pérennité. Sa structure et ses caractéristiques le rendent adapté à un large éventail d'activités : commerces de détail, bureaux, bureaux professionnels, restauration, centres de services, voire même un projet mixte (bureaux et commerces) ou résidentiel. En résumé, cet espace offre un potentiel exceptionnel pour ceux qui recherchent un espace polyvalent au cœur de Tías, l'une des villes les plus dynamiques et à la croissance la plus rapide de Lanzarote. Son emplacement, ainsi que ses possibilités d'agrandissement et de changement d'usage, en font un investissement sûr et stratégique, que ce soit pour un usage personnel ou comme projet immobilier rentable.
#ref: 1473
Plus

La carte peut ne pas indiquer l'emplacement exact

Cette annonce immobilière (réf: 1473) est fournie par Lanzarote Dream Homes et ne constitue pas nécessairement une description précise d’un bien particulier. Bien que aplaceinthesun.com (APITS Ltd.) demande à tous les annonceurs de fournir des informations correctes, il ne vérifie pas les informations fournies et ne peut être tenu responsable pour quelque erreur que ce soit. Aplaceinthesun.com recommande de solliciter un avis juridique indépendant avant tout achat de bien immobilier à l'étranger.