Premium New development

Jumelé de 3 chambres à vendre à Vilamoura

Vilamoura, Algarve, Portugal

€910 000  [£797 197]

Jumelé de 3 chambres à vendre à Vilamoura

Vilamoura, Algarve, Portugal

€910 000  [£797 197]

Détails du bien immobilier


  • Chambres: 3
  • Salles de bain: 3
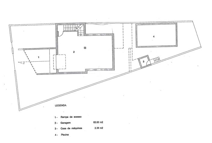
  • Surface du terrain: 337 m2
  • Surface habitable: 202 m2

Description complète


Cette charmante villa de 202m2 habitables et 101m2 de sous-sol, avec 3 chambres et une piscine individuelle est implantée sur un terrain de 337m2 situé dans un quartier calme et privilégié de Vilamoura. À quelques minutes des terrains de golf, des magnifiques plages au drapeau bleu, des restaurants, des bars, des boutiques et de la marina de Vilamoura. L'aéroport de Faro est à 20 minutes en voiture.

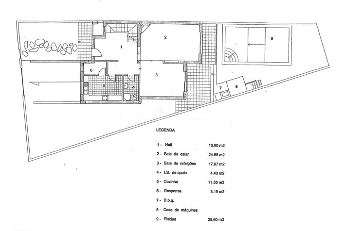
Au rez-de-chaussée, la villa se compose d'un grand hall d'entrée qui s'ouvre sur un salon et une salle à manger spacieux et lumineux orientés au sud, avec de très hauts plafonds et une cheminée. De cette pièce, on a accès à une terrasse donnant sur la piscine et l'espace barbecue. La cuisine est spacieuse, lumineuse et fonctionnelle. Également au rez-de-chaussée se trouve une salle de bains familiale.

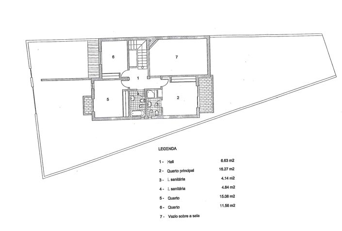
Au premier étage, la villa offre trois chambres dont une en suite et les deux autres partagent une salle de bain familiale.

À l'extérieur, on peut profiter de la vue sur les espaces verts, qui offrent une certaine intimité et tranquillité. Dans la piscine avec jardin et dans la zone barbecue, vous pourrez prendre vos repas et vous détendre en famille ou entre amis.

La propriété dispose également d'un grand garage en sous-sol avec accès direct à la maison. Cet espace pourrait être transformé en salle de jeux et/ou en buanderie.

Les caractéristiques/équipements mentionnés dans cette description sont sujets à vérification et accord entre les vendeurs et les acheteurs potentiels.

CE: F

Plus

La carte peut ne pas indiquer l'emplacement exact

Cette annonce immobilière (réf: FC486GTS) est fournie par Fine and Country Algarve et ne constitue pas nécessairement une description précise d’un bien particulier. Bien que aplaceinthesun.com (APITS Ltd.) demande à tous les annonceurs de fournir des informations correctes, il ne vérifie pas les informations fournies et ne peut être tenu responsable pour quelque erreur que ce soit. Aplaceinthesun.com recommande de solliciter un avis juridique indépendant avant tout achat de bien immobilier à l'étranger.