Premium New development

Commercial à vendre à Tsiflikoudia

Tsiflikoudia, Limassol, Chypre

€700 000  [£608 854]

Commercial à vendre à Tsiflikoudia

Tsiflikoudia, Limassol, Chypre

€700 000  [£608 854]

Détails du bien immobilier


  • Chambres: 0
  • Salles de bain: 0
  • Surface habitable: 240 m2

Caractéristiques


  • Air Condition

Description complète


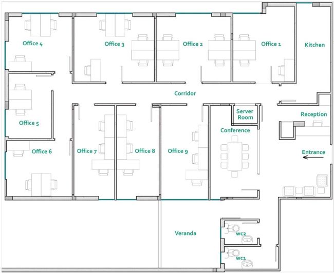
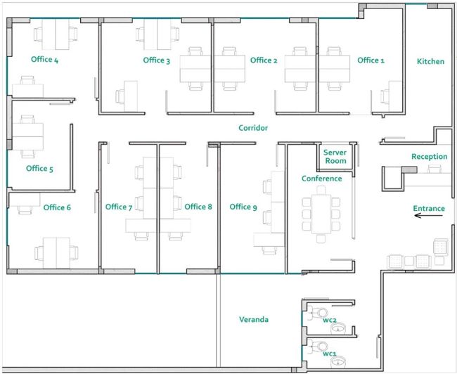
Nous sommes heureux d'offrir deux bureaux Rénové à vendre dans un emplacement privilégié sur Franklin Roosevelt Street, idéalement situé entre Limassol Marina et le New Port. Situés au premier étage d'un immeuble de deux étages, les deux bureaux sont Autre opposés et peuvent être utilisés comme un seul. La propriété est stratégiquement située à proximité d'infrastructures essentielles, notamment des bâtiments administratifs, des banques et des bureaux d'entreprises locales et internationales, ce qui en fait un excellent choix pour vos activités commerciales. Bureau 1 • Surface totale: 180 m2 • Surface de réception • 9 bureaux spacieux • Salle de conférence • Salle de serveurs • Cuisine • 2 WC (Hommes/Femmes) • Veranda couverte • Climatisation (Chaud/Froid) • 2 espaces dédiés Parking • Entièrement Rénové en 2023 • Rendu locatif estimé: 7% Bureau 2 • Surface totale: 60 m2 • Surface de réception • 1 bureau de gestion • Salle de conférence • Salle de serveurs • Cuisine • WC • Veranda couverte • Climatisation (Chaud/Froid) • 1 Espace dédié Parking • Entièrement Rénové en 2023 • Rendu locatif estimé: 7%
Plus

*Certaines descriptions de biens immobiliers sur ce site sont traduites automatiquement par intelligence artificielle. Malgré tous nos efforts pour garantir leur exactitude, des erreurs ou des inexactitudes peuvent subsister. La version originale de l'annonce fait foi.

La carte peut ne pas indiquer l'emplacement exact

Cette annonce immobilière (réf: 238906) est fournie par MySpace Real Estate et ne constitue pas nécessairement une description précise d’un bien particulier. Bien que aplaceinthesun.com (APITS Ltd.) demande à tous les annonceurs de fournir des informations correctes, il ne vérifie pas les informations fournies et ne peut être tenu responsable pour quelque erreur que ce soit. Aplaceinthesun.com recommande de solliciter un avis juridique indépendant avant tout achat de bien immobilier à l'étranger.