Premium New development

Appartement de 3 chambres à vendre à Evian-les-Bains

Evian-les-Bains, Haute-Savoie, Rhône-Alpes, France

€577 500  [£507 024]

Appartement de 3 chambres à vendre à Evian-les-Bains

Evian-les-Bains, Haute-Savoie, Rhône-Alpes, France

€577 500  [£507 024]

Détails du bien immobilier


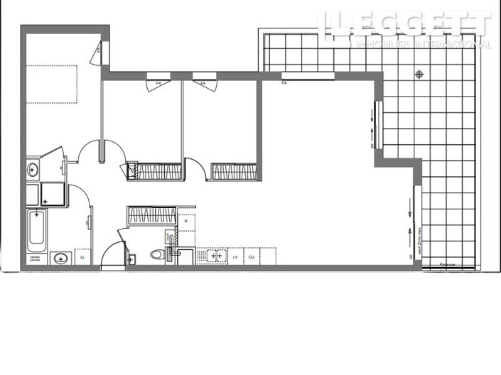
  • Chambres: 3
  • Salles de bain: 1
  • Surface du terrain: 30 m2

Description complète


Discover this magnificent new 4-room apartment, ideally located close to the Evian Resort Golf Club, a few steps from Lake Geneva and 2 kilometres from the town centre.

This apartment will be very bright thanks to large bay windows and will open onto a private terrace of over 30 m², perfect for socialising in fine weather.

The apartment includes a spacious living room/kitchen of over 43 m² opening onto the terrace.
There are also three cosy bedrooms, a bathroom and a shower room.

This new 4-storey residence, overlooking the lake, has a communal garden and offers a peaceful and green setting in a sought-after neighbourhood.

Ideal for golf enthusiasts and those looking for a pleasant living environment, this apartment combines modern comfort with proximity to local amenities.
Plus

La carte peut ne pas indiquer l'emplacement exact

Cette annonce immobilière (réf: A39282VRS74) est fournie par Leggett Immobilier et ne constitue pas nécessairement une description précise d’un bien particulier. Bien que aplaceinthesun.com (APITS Ltd.) demande à tous les annonceurs de fournir des informations correctes, il ne vérifie pas les informations fournies et ne peut être tenu responsable pour quelque erreur que ce soit. Aplaceinthesun.com recommande de solliciter un avis juridique indépendant avant tout achat de bien immobilier à l'étranger.