Premium New development
Retour aux Résultats

Ferme de 7 chambres à vendre à Cortona

Cortona, Arezzo, Toscane, Italie

€920 000  [£800 905]

Ferme de 7 chambres à vendre à Cortona

Cortona, Arezzo, Toscane, Italie

€920 000  [£800 905]

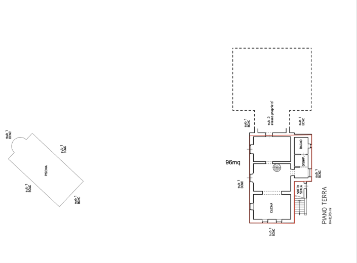
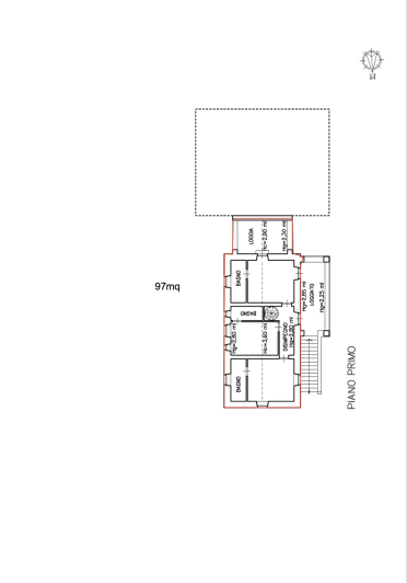
Détails du bien immobilier


  • Chambres: 7
  • Salles de bain: 5
  • Surface du terrain: 10000 m2
  • Surface habitable: 311 m2

Description complète


Nichée dans la belle vallée au pied de Cortona, Colonica Miramonti est une résidence qui allie sans effort le charme de l'architecture toscane traditionnelle avec la fonctionnalité des solutions de vie modernes. Construit de manière nouvelle, avec une grande attention pour le contexte et les matériaux locaux, il offre une vue inoubliable sur les collines environnantes, dans une atmosphère de paix et d'harmonie. La propriété s'étend sur environ 330 mètres carrés sur deux niveaux, avec des espaces spacieux et bien organisés qui accueillent et étonnent. Les espaces communs comprennent un grand salon avec une zone de détente accueillante, une salle à manger spacieuse parfaite pour le divertissement et la socialisation, et une cuisine moderne et fonctionnelle, directement reliée à l'extérieur. Les sept chambres, toutes conçues avec un mélange captivant d'éléments modernes et traditionnels, offrent des espaces confortables et bien proportionnés, tandis que les cinq salles de bains spacieuses, avec tout le confort, garantissent une pratique et une intimité maximales. À l'extérieur, la ferme est entourée d'environ 10 000 mètres carrés de Terrain, avec de vastes espaces verts invitant à la détente et à la convivialité. La cour clôturée, surmontée d'une vue panoramique splendide, est l'endroit idéal pour profiter pleinement du paysage et du climat toscans. Une charmante pergola, parfaite pour les déjeuners et dîners en plein air pendant les mois les plus chauds, et un panorama Balcon offrant une vue imprenable sur la campagne environnante sont également présentés. L'accès à la propriété est facile et privé grâce à une porte électrique pratique. Les caractéristiques techniques et les détails pour une habitabilité maximale comprennent un puits privé de 90 mètres de profondeur, un système d'alarme, des grilles de sécurité sur les fenêtres Rez-de-chaussée, des moustiquaires sur tous les appareils, Climatisation au dernier étage, Wi-Fi dans tout le Maison, et un système de chauffage efficace avec une chaudière à granulés de dernière génération, avec le gaz naturel qui arrivera bientôt. Colonica Miramonti est bien plus qu'une maison: c'est une expérience authentique, une oasis exclusive à quelques minutes de Cortona et de ses commodités, où vous pouvez pleinement découvrir la beauté et la tranquillité de la campagne toscane sans sacrifier le confort et la modernité.
Plus

*Certaines descriptions de biens immobiliers sur ce site sont traduites automatiquement par intelligence artificielle. Malgré tous nos efforts pour garantir leur exactitude, des erreurs ou des inexactitudes peuvent subsister. La version originale de l'annonce fait foi.

La carte peut ne pas indiquer l'emplacement exact

Cette annonce immobilière (réf: C030) est fournie par Cortona Immobiliare Real Estate et ne constitue pas nécessairement une description précise d’un bien particulier. Bien que aplaceinthesun.com (APITS Ltd.) demande à tous les annonceurs de fournir des informations correctes, il ne vérifie pas les informations fournies et ne peut être tenu responsable pour quelque erreur que ce soit. Aplaceinthesun.com recommande de solliciter un avis juridique indépendant avant tout achat de bien immobilier à l'étranger.