Premium New development

Appartement à vendre à Nice

Nice, Alpes-Maritimes, Provence-Alpes-Côte-d'Azur, France

€129 000  [£113 476]

Appartement à vendre à Nice

Nice, Alpes-Maritimes, Provence-Alpes-Côte-d'Azur, France

€129 000  [£113 476]

Détails du bien immobilier


  • Chambres: 0
  • Salles de bain: 1

Caractéristiques


  • Chauffage électrique

Description complète


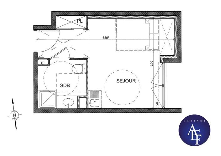
Nice Riquier/ Tnl
Aefsud vous propose un lumineux studio d'une superficie de 21m2 situé au 1er étage d'une résidence récente de standing de 2016..
Il se compose d'une pièce de vie de 17m2 et d'une salle de douche avec Wc de 4m2. Placards
Plan optimisé sans perte de place.
Vendu loué
Bail en rnières normes isolation phoniques et thermiques
Prix 129 000 e Fai
1 stationnement en sus du prix 25000 €
Taxe foncière: 581 euros.
Charges de copropriété 65 euros mensuel
A saisir rapidement!
Plus

La carte peut ne pas indiquer l'emplacement exact

Cette annonce immobilière (réf: A4wzdysitlz2gron) est fournie par French Gold Property et ne constitue pas nécessairement une description précise d’un bien particulier. Bien que aplaceinthesun.com (APITS Ltd.) demande à tous les annonceurs de fournir des informations correctes, il ne vérifie pas les informations fournies et ne peut être tenu responsable pour quelque erreur que ce soit. Aplaceinthesun.com recommande de solliciter un avis juridique indépendant avant tout achat de bien immobilier à l'étranger.