Premium New development

Maison de 3 chambres à vendre à Loule

Loule, Algarve, Portugal

€1 200 000  [£1 051 801]

Maison de 3 chambres à vendre à Loule

Loule, Algarve, Portugal

€1 200 000  [£1 051 801]

Détails du bien immobilier


  • Chambres: 3
  • Salles de bain: 3
  • Surface du terrain: 1036 m2
  • Surface habitable: 258 m2

Caractéristiques


  • Garage
  • Double Verre
  • Certificat de performance énergétique – A

Description complète


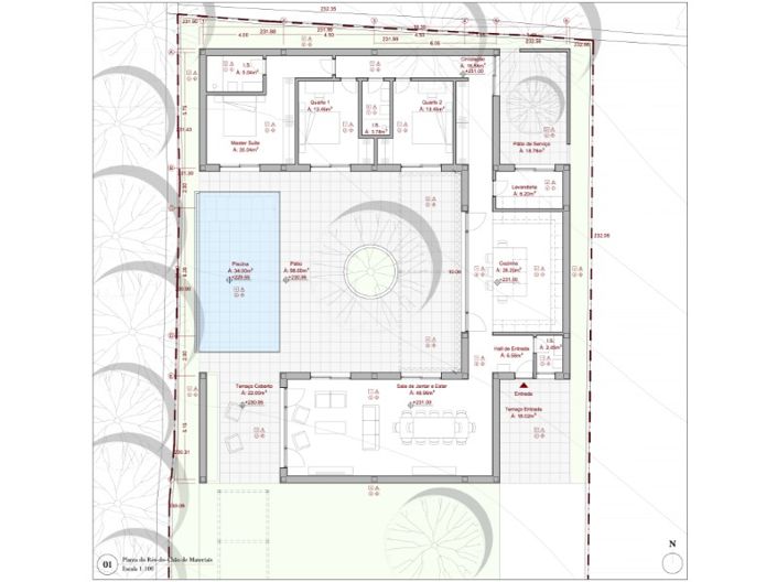
Maison de plain-pied en phase finale de construction, située à environ 3 km du centre de Loulé, sur un généreux terrain de 1 036 m².
Cette propriété combine harmonieusement le charme de l'architecture traditionnelle avec le confort et la fonctionnalité de la construction moderne.
La maison est orientée de manière à ce que toutes les pièces donnent sur le patio intérieur, où se distingue une piscine de 34 m², idéale pour se détendre en toute intimité.
Ce patio de 98 m² constitue le véritable cœur de la maison, bénéficiant d'une excellente exposition au soleil et de grandes baies vitrées qui offrent une abondante lumière naturelle à tous les espaces intérieurs.
L'intérieur comprend trois chambres, dont une en suite, une salle de bains complète pour les deux autres chambres, ainsi qu'une salle de bains supplémentaire pour les invités.
La cuisine, de 28,20 m², offre un espace spacieux et fonctionnel.
Le salon, impressionnant avec ses 48,96 m², invite à la convivialité et au confort, parfait pour des moments en famille ou entre amis.
La buanderie est discrètement intégrée, assurant une grande praticité au quotidien.
À l'extérieur, la propriété dispose également d'un garage fermé, comprenant une salle de bains supplémentaire, d'un carport attenant et d'un portail électrique à l'entrée du terrain, renforçant la sécurité et la commodité.
Avec des finitions de haute qualité et une architecture pensée pour tirer le meilleur parti de la lumière naturelle, cette maison est le choix idéal pour ceux qui recherchent la tranquillité tout en restant proches des commodités de la ville. À quelques minutes en voiture, vous trouverez les plages de la région, des golfs prestigieux et l'aéroport international de Faro tous situés à environ 20 minutes.
Il s'agit d'une opportunité unique pour ceux qui apprécient l'équilibre entre la campagne et la ville, avec tout le confort moderne. La maison bénéficie également d'un classement énergétique A, garantissant une excellente efficacité thermique et énergétique.
Réservez votre visite et découvrez le charme de cette propriété exceptionnelle aux environs de Loulé.
Premier Algarve.
Performance Énergétique: A
#ref: M1056
Plus

La carte peut ne pas indiquer l'emplacement exact

Cette annonce immobilière (réf: M1056) est fournie par Premier Villas et ne constitue pas nécessairement une description précise d’un bien particulier. Bien que aplaceinthesun.com (APITS Ltd.) demande à tous les annonceurs de fournir des informations correctes, il ne vérifie pas les informations fournies et ne peut être tenu responsable pour quelque erreur que ce soit. Aplaceinthesun.com recommande de solliciter un avis juridique indépendant avant tout achat de bien immobilier à l'étranger.