Premium New development

Villa de 3 chambres à vendre à Ayia Napa

Ayia Napa, Famagusta, Chypre

€3 650 000  [£3 177 505]

Villa de 3 chambres à vendre à Ayia Napa

Ayia Napa, Famagusta, Chypre

€3 650 000  [£3 177 505]

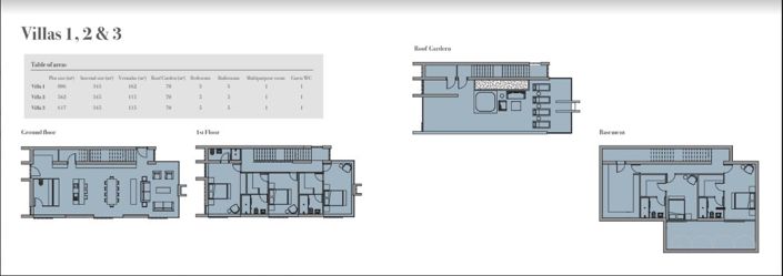
Détails du bien immobilier


  • Chambres: 3
  • Salles de bain: 3
  • Surface du terrain: 2070 m2
  • Surface habitable: 369 m2

Description complète


Luxe Villa de 3 chambres à coucher au bord de la mer Ayia Napa Ce prestigieux Villa fait partie d'un développement Sur plan au bord de la mer sur la côte est d'Ayia Napa, conçu pour combiner une vie expansive avec une architecture raffinée et un accès direct au littoral méditerranéen. Situé dans un emplacement privilégié, il offre une intimité, une vue panoramique sur la mer et une proximité immédiate de la vie côtière animée. Villa Caractéristiques hors plan Livraison estimée: 2T 2027 Le prix est soumis à TVA 3 chambres 3 salles de bains WC couvert pour invités Surface couverte: 369 m2 Toit Jardin: 70 m2 Surface du terrain: 2070 m2 Parking couvert inclus Le Villa offre 369 m2 d'espace de vie couvert, disposé sur trois chambres spacieuses, trois salles de bains et un WC pour invités. Un toit privé de 70 m2 Jardin couronne la maison, offrant une vue imprenable sur la mer et une retraite tranquille en plein air. Le généreux Terrain de 2070 m2 assure un grand espace extérieur, une intimité et une flexibilité pour l'aménagement paysager ou les loisirs. Les finitions de qualité supérieure, l'accès sécurisé et une disposition architecturale propre élèvent l'expérience de vie. La personnalisation optionnelle des finitions peut être disponible selon les préférences de l'acheteur. Les installations communes comprennent des environs aménagés et une entrée sécurisée. Les frais de communes seront confirmés à la fin. Cette résidence est idéale comme maison permanente ou comme escapade de vacances haut de gamme, offrant à la fois exclusivité et accès direct à la plage. Situé à quelques pas de la plage, le Villa est à moins de 5 km des magasins et des restaurants, avec des écoles situées à 5 km et l'aéroport international à seulement 35 km. Cet emplacement privilégié offre à la fois la tranquillité et la connectivité, ce qui en fait un choix parfait pour les familles, les investisseurs ou les personnes qui recherchent un style de vie.
Plus

*Certaines descriptions de biens immobiliers sur ce site sont traduites automatiquement par intelligence artificielle. Malgré tous nos efforts pour garantir leur exactitude, des erreurs ou des inexactitudes peuvent subsister. La version originale de l'annonce fait foi.

La carte peut ne pas indiquer l'emplacement exact

Cette annonce immobilière (réf: CAT-OSFV3) est fournie par Sunshine Luxury Villas et ne constitue pas nécessairement une description précise d’un bien particulier. Bien que aplaceinthesun.com (APITS Ltd.) demande à tous les annonceurs de fournir des informations correctes, il ne vérifie pas les informations fournies et ne peut être tenu responsable pour quelque erreur que ce soit. Aplaceinthesun.com recommande de solliciter un avis juridique indépendant avant tout achat de bien immobilier à l'étranger.