Premium New development

Maison de 3 chambres à vendre à Lecci

Lecci, Corse-du-Sud, Corse, France

€880 000  [£773 558]

Maison de 3 chambres à vendre à Lecci

Lecci, Corse-du-Sud, Corse, France

€880 000  [£773 558]

Détails du bien immobilier


  • Chambres: 3
  • Salles de bain: 3

Caractéristiques


  • Piscine
  • Chauffage électrique

Description complète


Rv1901-E-T4

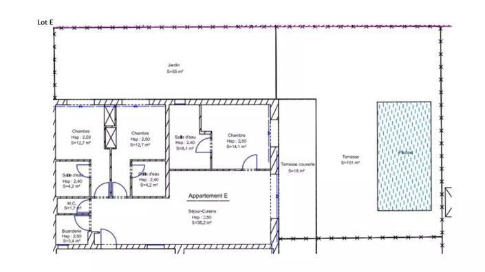
Nichée dans une résidence de standing à seulement quelques minutes à pied de la plage de Cala Rossa, cette villa de plain-pied séduit par sa belle pièce de vie baignée de lumière, sa cuisine entièrement équipée et sa buanderie attenante. Elle dispose de 3 chambres, chacune avec sa propre salle de douche.

La propriété est entourée d’un jardin paysager de style minéral et s’agrémente d’une piscine chauffée, idéale pour profiter pleinement des extérieurs.

Un service complet de gestion locative est proposé, offrant la possibilité d’optimiser votre investissement en mettant la villa en location durant vos périodes d’absence.

La villa fait partie d’un ensemble résidentiel sécurisé de 7 lots, situé dans un domaine fermé en copropriété, garantissant calme et sérénité.

La résidence propose également 4 autres villas de type T4, avec des tarifs compris entre 880 000 € et 995 000 €.

Les honoraires sont à la charge du vendeur.
Plus

La carte peut ne pas indiquer l'emplacement exact

Cette annonce immobilière (réf: A0cdu6rw3aqe25wg) est fournie par French Gold Property et ne constitue pas nécessairement une description précise d’un bien particulier. Bien que aplaceinthesun.com (APITS Ltd.) demande à tous les annonceurs de fournir des informations correctes, il ne vérifie pas les informations fournies et ne peut être tenu responsable pour quelque erreur que ce soit. Aplaceinthesun.com recommande de solliciter un avis juridique indépendant avant tout achat de bien immobilier à l'étranger.