Premium New development

Villa de 3 chambres à vendre à Pomarance

Pomarance, Pise, Toscane, Italie

€690 000  [£600 679]

Villa de 3 chambres à vendre à Pomarance

Pomarance, Pise, Toscane, Italie

€690 000  [£600 679]

Détails du bien immobilier


  • Chambres: 3
  • Salles de bain: 4

Description complète


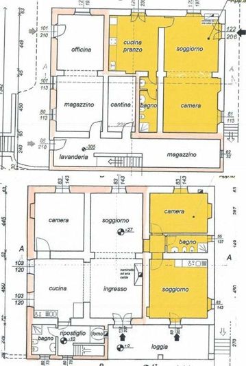
Une authentique ferme en pierre toscane, avec des vues magnifiques. Situé dans un endroit spectaculaire et calme avec une vue magnifique et une intimité totale. Entièrement Rénové et mesurant environ 370 m2 au total, la propriété comprend une maison principale et deux appartements, offrant un hébergement flexible pour la vie et la location. L'hébergement comprend: Unité principale au premier étage - résidence privée du propriétaire - composée de: portique, grand salon ouvert avec arches en briques comprenant cuisine, salle à manger et salon, salle de bain, 1 chambre et entrepôt. Des escaliers conduisent au Rez-de-chaussée où se trouvent une grande buanderie, un entrepôt et une cave à vin. Le premier étage Appartement (42 m2) comprenant: portique, salon avec kitchenette, 1 chambre et salle de bain; cet unité pourrait être reliée à l'unité principale voisine. Rez-de-chaussée Appartement (70 m2) avec cuisine, salon avec cheminée et chambre avec arche en brique et plafond voûté (c'est un espace ouvert) et salle de bain, ouvrant sur le Jardin en face de la piscine. A côté du Rez-de-chaussée Appartement, il y a une salle spacieuse qui sert actuellement d'atelier, mais qui offre le potentiel d'un Appartement supplémentaire de m2, ou d'augmenter la taille du Rez-de-chaussée Appartement. Le Maison a été Rénové préservant les caractéristiques et le caractère originaux de l'antiquité toscane dans un endroit merveilleux. Le Maison est équipé de systèmes d'économie d'énergie; il y a deux cheminées à air chaud pour le chauffage, l'eau chaude est produite par des chaudières électriques, et il y a un système photovoltaïque de 6 kWp sur le toit du Maison avec un système de stockage photovoltaïque de 7,5 kWh; une ligne électrique de 10 kWh de capacité en trois phases relie le Maison au réseau énergétique national; système d'Internet WiFi et télévision par satellite. Il y a aussi un réservoir de gaz LPG de 1000 litres pour cuisiner. Une source fournit 3000 litres d'eau par jour avec un réservoir de collecte de 5000 litres, une pompe, un traitement de l'eau potable, une piscine et un adoucisseur d'eau avec UV et un adoucisseur d'eau. À l'extérieur des jardins se trouvent un barbecue et une piste de bowling, ainsi qu'un Piscine (18 m2). Une annexe (30 m2) sert la piscine avec salle technique et salle de bains; dans l'annexe, il est possible d'installer un sauna (ce qui était à l'origine dans le projet du propriétaire). À proximité se trouve un parking de 110 m2 utilisé comme abri pour les équipements agricoles. La propriété est immergée dans le vert des bois: 28 ha (69 acres) entourent la propriété, y compris un olivier, un verger, un chêne de liège, un pré et une forêt. En descendant la colline, à 400 m de la Maison, vous pouvez atteindre la rivière Cornia. Les jours clairs, il est possible de voir au loin la ligne de la mer et l'île d'Elbe. Cecina et Follonica, deux des plus belles plages de la côte étrusque, se trouvent à seulement 40 km de la propriété. C'est un endroit parfait pour profiter de la beauté de la nature, du silence, du soleil, des vues, des espèces variées de faune et de flore, et de la région. La propriété est actuellement en partie utilisée comme maison familiale et les deux appartements Autre sont loués pendant la saison (d'avril à octobre). Canneto (8 km) est presque circulaire et est encore entourée de murs fortifiés. En fait, le village de Canneto était autrefois un château utilisé comme bastion défensif entre la vallée de la Cécine, la vallée de la Cornie et les collines métalliques. Le centre historique (à l'intérieur duquel se trouve la Pieve di S.Lorenzo avec un crucifix du XIIIe siècle) est construit sur un petit, mais frappant affleurement rocheux entouré de terrasses cultivées. À 15 minutes en voiture, vous pourrez visiter le parc géothermique de Biancane à Monterotondo Marittimo et le MUBIA, le géomuseum de Biancane, un lieu très spécial qui vous emmènera sur une autre planète. Dans la région, il y a une brasserie populaire et unique: les bières artisanales de Vapori di Birra, la première brasserie artisanale en Italie qui utilise la vapeur géothermique comme source d'énergie principale pour le processus industriel. L'installation a été conçue et modifiée pour tirer parti du potentiel offert par l'énergie géothermique et permet une économie d'énergie maximale dans la production de chaleur et un impact environnemental minimal. Canneto est également bien connue pour la cave "Tenuta di Canneto", avec ses collines douces donnant sur la mer Méditerranée, ses vignobles luxuriants, ses bois séculaires et ses oliviers millénaires. Le domaine de Canneto raconte une histoire de beauté et d'authenticité, avec des vins nés d'un généreux Terrain et d'un travail passionné, le reflet d'un territoire unique et fascinant. Les distances sont les suivantes: Massa Marimttima (30 km), Monteverdi Marittimo (14 km), Canneto (10 km), Pomarance (30 km), Volterra (50 km), Pise (98 km), Sienne (80 km). Certaines images ont peut-être été améliorées à l'aide de la technologie de l'IA Toutes les informations sont fournies de bonne foi et sont considérées comme correctes, mais ne font pas partie d'une offre ou d'un contrat
Plus

*Certaines descriptions de biens immobiliers sur ce site sont traduites automatiquement par intelligence artificielle. Malgré tous nos efforts pour garantir leur exactitude, des erreurs ou des inexactitudes peuvent subsister. La version originale de l'annonce fait foi.

La carte peut ne pas indiquer l'emplacement exact

Cette annonce immobilière (réf: casalesanvalentino2423) est fournie par Larchitrave Immobiliare et ne constitue pas nécessairement une description précise d’un bien particulier. Bien que aplaceinthesun.com (APITS Ltd.) demande à tous les annonceurs de fournir des informations correctes, il ne vérifie pas les informations fournies et ne peut être tenu responsable pour quelque erreur que ce soit. Aplaceinthesun.com recommande de solliciter un avis juridique indépendant avant tout achat de bien immobilier à l'étranger.