Premium New development

Maison de 3 chambres à vendre à Chianni

Chianni, Pise, Toscane, Italie

€160 000  [£139 836]

Maison de 3 chambres à vendre à Chianni

Chianni, Pise, Toscane, Italie

€160 000  [£139 836]

Détails du bien immobilier


  • Chambres: 3
  • Salles de bain: 1

Description complète


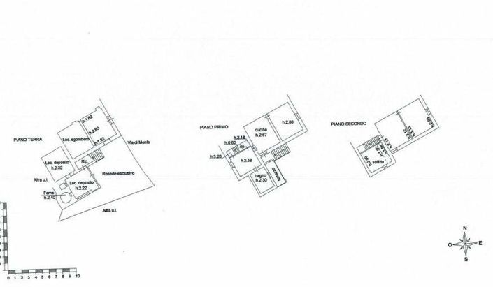
Jumelée Maison avec Jardin et Balcon situé à la périphérie de Chianni avec Parking privé, Casa Erica offre une excellente occasion en tant que Résidence secondaire ou en tant que maison familiale. Le Maison est la partie d'un bâtiment sur une allée très calme à la fin du village et il comprend: Au premier étage, accessible par un escalier extérieur à Balcon: entrée principale dans la cuisine avec Cheminée, salon, salle de bain spacieuse et lumineuse avec douche, entrepôt au rez-de-chaussée, et une chambre (ou éventuellement un autre salon / studio). Au deuxième étage: deux chambres (connectées par une porte - potentiellement, sous réserve de planification, une salle de bains pourrait être ajoutée ici pour créer une chambre principale ou une suite), un petit espace de grenier utilisé actuellement comme entrepôt. Sur le Rez-de-chaussée, il y a une cour devant le Maison qui peut être utilisée comme Parking privé. Il y a aussi deux caves, l'une avec un four à pizza et une autre pièce (une cave ou une taverne) avec de beaux plafonds voûtés et des arches en briques. De la cour, à quelques pas de là, se trouve le Jardin privé d'environ 250 m2 avec une vue magnifique sur les collines, un bel espace pour profiter du plein air. Le Maison bénéficierait d'une certaine modération, mais est en bon état avec des services connectés et fonctionnant. Située à Chianni, une jolie ville toscane, parfaitement entretenue, recouverte de pots de géraniums rouges et pleine de ruelles étroites pavées qui donnent sur de petites places intimes avec des églises magnifiques à chaque coin. La petite ville antique s'élève au-dessus des collines toscanes, ce qui donne une vue imprenable dans toutes les directions. Il y a de bons services, notamment des magasins, des banques, des restaurants, des bureaux de poste, des cafés sympathiques et des événements intéressants tout au long de l'année. Les plus importantes sont la fête de l'huile d'olive et la fête du sanglier. Avec un bon bistro convivial sur la place du village, une pizzeria locale et un choix de restaurants, cette ville très populaire compte une communauté animée, italienne et internationale. Pontedera est une ville intéressante et possède la gare principale de la ligne Pise-Florence, de bonnes liaisons routières et des supermarchés. Chianni est un lieu d'éternité et de calme, mais à seulement 40 minutes de l'aéroport de Pise. Les environs sont magnifiques et constituent un point de départ idéal pour explorer la Toscane. Près de Chianni, il est facile de se rendre en voiture au joli village de Lari, avec un ancien château, puis à la belle ville de Casciana Terme, célèbre pour ses eaux thermales avec un spa Rénové récemment construit avec piscines intérieures et extérieures. Casciana Terme est dominée par un autre château, avec une belle place centrale et depuis l'époque romaine, elle est célèbre pour ses eaux chaudes curatives. Aujourd'hui, c'est une ville animée avec un marché hebdomadaire animé et de grands magasins et restaurants et un célèbre théâtre. Elle est à mi-chemin entre le célèbre village de Volterra, au sommet d'une colline, et les splendeurs de Pise. Les villes côtières de Castiglioncello et Cecina, les terrains de golf de Pise et Castelfalfi, ainsi que les villes historiques de Volterra et San Gimignano sont facilement accessibles et font toutes une journée merveilleuse. La vieille ville de Livorno est également proche, avec des plages rocheuses et un dédale de canaux à découvrir en bateau et d'où il est possible de monter à bord du ferry pour se détendre dans le rythme doux de la vie de plage de l'île d'Elbe. Les villes d'art voisines sont Volterra, San Gimignano, Palaia et Florence, chacune offrant un art et une architecture splendides à admirer. Les collines entre les deux, parsemées de villages et de châteaux médiévaux, et les ruelles bordées de grands cyprès vert foncé symbolisent ce paysage toscan. À Lajatico, le célèbre ténor Andrea Bocelli a son Teatro del Silenzio (le théâtre du silence) qui attire les plus grands noms de la musique et de l'opéra lorsqu'il organise un festival d'été spectaculaire en juillet. Il y a tant à découvrir en Toscane. Aéroport de Pise dans 30 à 40 minutes. Distance: Chianni à la porte, Lari à 4 km, Casciana Terme à 10 km, Pontedera (trains, supermarchés) à 10 km, Palaia à 25 km, Plages à 30 km, Castelfalfi (golf et spa) à 30 km, Livorno à 30 km, Volterra à 30 km, San Gimignano à 45 km, Pise (aéroport) à 40 km, Lucques à 75 km, Sienne à 85 km, Florence à 90 km. Certaines images ont peut-être été améliorées à l'aide de la technologie de l'IA Toutes les informations sont fournies de bonne foi et sont considérées comme correctes, mais ne font pas partie d'une offre ou d'un contrat
Plus

*Certaines descriptions de biens immobiliers sur ce site sont traduites automatiquement par intelligence artificielle. Malgré tous nos efforts pour garantir leur exactitude, des erreurs ou des inexactitudes peuvent subsister. La version originale de l'annonce fait foi.

La carte peut ne pas indiquer l'emplacement exact

Cette annonce immobilière (réf: casaerica2438) est fournie par Larchitrave Immobiliare et ne constitue pas nécessairement une description précise d’un bien particulier. Bien que aplaceinthesun.com (APITS Ltd.) demande à tous les annonceurs de fournir des informations correctes, il ne vérifie pas les informations fournies et ne peut être tenu responsable pour quelque erreur que ce soit. Aplaceinthesun.com recommande de solliciter un avis juridique indépendant avant tout achat de bien immobilier à l'étranger.