Premium New development

Propriété de 3 chambres à vendre à Monchique

Monchique, Algarve, Portugal

€1 325 000  [£1 164 017]

Propriété de 3 chambres à vendre à Monchique

Monchique, Algarve, Portugal

€1 325 000  [£1 164 017]

Détails du bien immobilier


  • Chambres: 3
  • Salles de bain: 4
  • Surface du terrain: 54000 m2
  • Surface habitable: 373,3 m2

Description complète


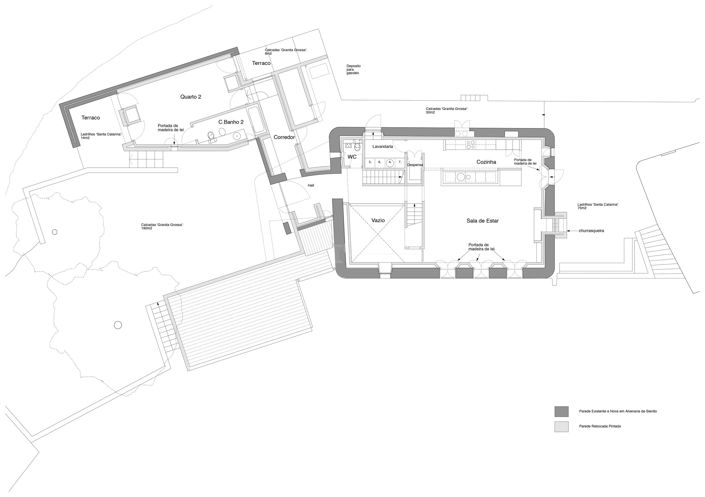
Propriété inspirée d'une habitation de montagne traditionnelle, un joyau caché qui surplombe sa propre vallée avec un ruisseau de montagne et une vaste forêt d'eucalyptus, de chênes et d'arbres fruitiers. Bien que totalement isolée, la propriété se trouve à seulement 5 minutes en voiture de la ville de Monchique et à moins de 30 minutes de Portimão et de la côte. Il y a une parcelle de terrain adjacente avec ruine donnant un total de 5,4 hectares avec la possibilité de réhabilitation de la ruine, ainsi qu'une dépendance actuellement utilisée pour le stockage mais idéale pour la conversion en atelier.
La propriété était autrefois une ferme en activité et les vestiges d'un système d'irrigation complexe de plusieurs siècles construit à flanc de colline sont encore visibles. Le logement comprend deux structures distinctes, la maison principale où l'architecture contemporaine a été magistralement intégrée avec le bâtiment de ferme d'origine utilisant un haut niveau de finition et de matériaux de première qualité et la maison d'amis qui a été rénovée dans le style traditionnel. La maison principale offre 3 chambres en suite, un salon / salle à manger ouverte, des toilettes invités et des couloirs d'inspiration architecturale baignés de lumière naturelle. La maison d'amis dispose d'un salon confortable et d'un coin cuisine, deux chambres et une salle de bain au rez-de-chaussée et une autre chambre à l'étage dans le grenier.
À l'extérieur, divers espaces de terrasse ravissants sont idéalement positionnés pour admirer la vue sur la vallée tout en appréciant l'architecture. Il y a une petite piscine convertie à partir de l'ancien réservoir d'eau.
C'est une propriété vraiment unique, idéale comme maison isolée mais aussi bien adaptée pour exploiter une petite entreprise de tourisme rural avec des possibilités de développement supplémentaires. Éligible au Golden Visa.

* Les caractéristiques/équipements mentionnés dans cette description doivent être sujets à vérification et accord entre les vendeurs et les acheteurs.
Plus

La carte peut ne pas indiquer l'emplacement exact

Cette annonce immobilière (réf: FC1017VCZ) est fournie par Fine and Country Algarve et ne constitue pas nécessairement une description précise d’un bien particulier. Bien que aplaceinthesun.com (APITS Ltd.) demande à tous les annonceurs de fournir des informations correctes, il ne vérifie pas les informations fournies et ne peut être tenu responsable pour quelque erreur que ce soit. Aplaceinthesun.com recommande de solliciter un avis juridique indépendant avant tout achat de bien immobilier à l'étranger.