Premium New development
Retour aux Résultats

Appartement de 1 chambre à vendre à Leivadia

Leivadia, Larnaca, Chypre

€200 000  [£174 110]

Appartement de 1 chambre à vendre à Leivadia

Leivadia, Larnaca, Chypre

€200 000  [£174 110]

Détails du bien immobilier


  • Chambres: 1
  • Salles de bain: 2
  • Surface habitable: 51,6 m2

Description complète


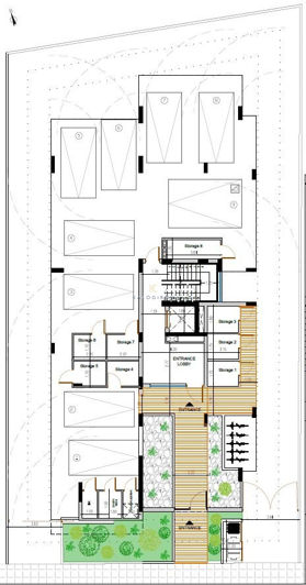
Dernier étage, un appartement avec un toit Jardin à vendre dans la région de Livadia, Larnaca. Un emplacement incroyable, à proximité de toutes les commodités telles que les écoles, les supermarchés, les banques, les cafés, les pharmacies, etc. À quelques minutes en voiture du centre-ville, du port et de la plage. Accès très facile à l'autoroute Larnaca, Nicosie. L'aéroport international Larnaca est à seulement 14 minutes. Le premier étage Appartement à vendre dans la région de Livadia, Larnaca. Il se compose d'un Cuisine ouverte, salle à manger, salon, salle de douche principale, une chambre, véranda couverte et toit Jardin. Le toit Jardin est constitué de la véranda, d'une salle de douche et d'un entrepôt. En outre, les résidents auront accès à un Parking couvert et à un deuxième Débarras sur le Rez-de-chaussée. Le Appartement fait partie d'un projet contemporain à deux étages. Il dispose de 8 appartements d'une et deux chambres. Il y a 4 appartements par étage. Les appartements Dernier étage bénéficient d'un toit privé Jardin et tous les appartements ont leur propre espace de rangement et Parking couvert.

Extra: A/C, véranda, toit Jardin, 2 entrepôts, Parking couvert, ascenseur
Plus

*Certaines descriptions de biens immobiliers sur ce site sont traduites automatiquement par intelligence artificielle. Malgré tous nos efforts pour garantir leur exactitude, des erreurs ou des inexactitudes peuvent subsister. La version originale de l'annonce fait foi.

La carte peut ne pas indiquer l'emplacement exact

Cette annonce immobilière (réf: 52112) est fournie par Kalogirou Real Estate et ne constitue pas nécessairement une description précise d’un bien particulier. Bien que aplaceinthesun.com (APITS Ltd.) demande à tous les annonceurs de fournir des informations correctes, il ne vérifie pas les informations fournies et ne peut être tenu responsable pour quelque erreur que ce soit. Aplaceinthesun.com recommande de solliciter un avis juridique indépendant avant tout achat de bien immobilier à l'étranger.