Premium New development

Propriété de 3 chambres à vendre à Carvoeiro

Carvoeiro, Algarve, Portugal

€904 500  [£787 412]

Propriété de 3 chambres à vendre à Carvoeiro

Carvoeiro, Algarve, Portugal

€904 500  [£787 412]

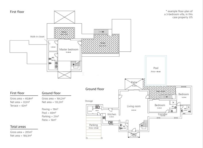
Détails du bien immobilier


  • Chambres: 3
  • Salles de bain: 4
  • Surface du terrain: 975 m2
  • Surface habitable: 205 m2

Description complète


Cette magnifique maison Villa de 3 chambres, située dans un coin serein de Carvoeiro, offre le cadre idéal pour un style de vie familial paisible. Avec son propre Piscine privée et ses jardins luxuriants, il offre une intimité et un espace de détente. La propriété dispose d'un salon et d'une salle à manger, de trois chambres avec salle de bain, d'un placard et de vastes terrasses pour manger et se détendre en plein air. Les finitions haut de gamme telles que Daikin Climatisation et les appareils de cuisine haut de gamme garantissent que le confort rencontre le luxe dans chaque détail. Les familles apprécieront les terrains de jeux, les installations sportives et les activités adaptées aux enfants, créant ainsi un environnement idéal pour se détendre et jouer.

Alors que le Villa offre l'indépendance et la tranquillité d'une maison privée, les propriétaires ont la possibilité de participer à un programme de location pour une flexibilité accrue et des rendements potentiels Investissement lorsque la propriété n'est pas utilisée.

Expérience le meilleur des deux mondes, une vie de famille exclusive avec tous les conforts, sur fond de beauté naturelle des Algarves. Nous travaillons également en étroite collaboration avec les bureaux Fine & Country ailleurs en Portugal et à l'international. Dans le Algarve, Fine & Country dispose d'un vaste portefeuille de propriétés à vendre et d'une équipe dédiée de professionnels possédant une connaissance approfondie du marché.

* Les caractéristiques des équipements mentionnés dans cette description sont soumises à la vérification et à l'accord entre les vendeurs et les acheteurs.

EPC: B- - REF: 381/CC VL3
Plus

*Certaines descriptions de biens immobiliers sur ce site sont traduites automatiquement par intelligence artificielle. Malgré tous nos efforts pour garantir leur exactitude, des erreurs ou des inexactitudes peuvent subsister. La version originale de l'annonce fait foi.

La carte peut ne pas indiquer l'emplacement exact

Cette annonce immobilière (réf: 381/CC VL3) est fournie par Fine and Country Algarve et ne constitue pas nécessairement une description précise d’un bien particulier. Bien que aplaceinthesun.com (APITS Ltd.) demande à tous les annonceurs de fournir des informations correctes, il ne vérifie pas les informations fournies et ne peut être tenu responsable pour quelque erreur que ce soit. Aplaceinthesun.com recommande de solliciter un avis juridique indépendant avant tout achat de bien immobilier à l'étranger.