Premium New development
Retour aux Résultats

Maison de ville de 4 chambres à vendre à San Roque

San Roque, Cadix, Andalousie, Espagne

€869 000  [£756 507]

Maison de ville de 4 chambres à vendre à San Roque

San Roque, Cadix, Andalousie, Espagne

€869 000  [£756 507]

Détails du bien immobilier


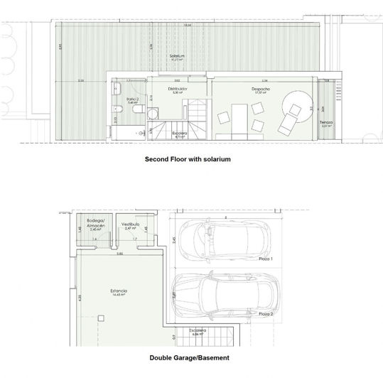
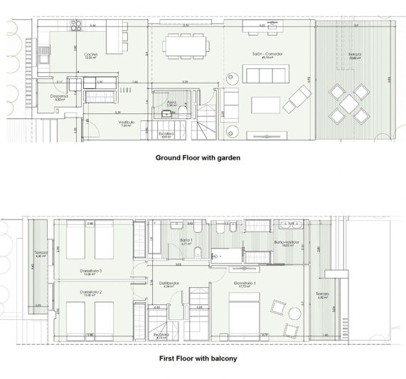
  • Chambres: 4
  • Salles de bain: 4
  • Surface du terrain: 377 m2
  • Surface habitable: 203 m2

Description complète


Bénéficiant d'un excellent emplacement en première ligne de golf, cette maison est située dans un quartier résidentiel calme avec une grande intimité, dans un développement avec seulement 46 unités entouré par la nature et avec un accès facile aux plages locales, aux écoles internationales et à une offre commerciale diversifiée. Cette propriété est particulièrement attrayante si vous êtes un amateur de sport, car elle est située à côté d'une grande variété de terrains de golf très réputés en Espagne, tels que Valderrama et Almenara, ainsi que de centres équestres et de clubs de polo tels que Santa Maria Polo et Ayala Polo Club. En plus de profiter des activités nautiques proposées à la fois sur la plage et dans le prestigieux port de Sotogrande. La maison est répartie sur deux étages plus une terrasse ensoleillée. Cette maison offre espace et lumière dans chaque espace. Au rez-de-chaussée, nous trouvons un élégant couloir, une cuisine ouverte blanche entièrement équipée avec des appareils haut de gamme et une buanderie séparée. La cuisine est reliée à un spacieux salon-salle à manger qui mène à une terrasse avec une vue incroyable sur le golf. Il dispose également de toilettes invités. Au premier étage se trouve la chambre principale avec une salle de bain attenante, séparée par une porte coulissante, et un balcon vitré donnant sur le parcours de golf. Les deux autres chambres, orientées à l'est, partagent une salle de bain complète et disposent chacune de leur propre balcon donnant sur la piscine. Au dernier étage, nous avons une grande terrasse ensoleillée couronnant la maison, d'où vous pourrez profiter d'une vue imprenable sur la mer, la zone commune et le terrain de golf. La maison offre la commodité d'un parking privé et d'un débarras, ainsi que d'excellents espaces communs comprenant des jardins, une piscine et une salle de sport. OPPORTUNITÉ DE VIVRE LE LUXE D'AVOIR VOTRE MAISON EN PREMIÈRE LIGNE DU TERRAIN DE GOLF !
Plus

La carte peut ne pas indiquer l'emplacement exact

Cette annonce immobilière (réf: S5020399) est fournie par Spanish Dream et ne constitue pas nécessairement une description précise d’un bien particulier. Bien que aplaceinthesun.com (APITS Ltd.) demande à tous les annonceurs de fournir des informations correctes, il ne vérifie pas les informations fournies et ne peut être tenu responsable pour quelque erreur que ce soit. Aplaceinthesun.com recommande de solliciter un avis juridique indépendant avant tout achat de bien immobilier à l'étranger.