Premium New development

Villa de 3 chambres à vendre à Geroskipou

Geroskipou, Paphos, Chypre

€870 000  [£756 127]

Villa de 3 chambres à vendre à Geroskipou

Geroskipou, Paphos, Chypre

€870 000  [£756 127]

Détails du bien immobilier


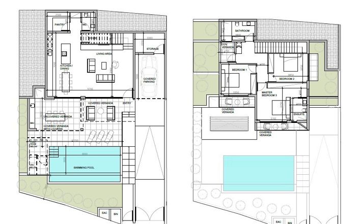
  • Chambres: 3
  • Salles de bain: 3

Description complète


Des villas de luxe offrant une élégance moderne et une sérénité. Vivez le sommet de la vie contemporaine dans un magnifique complexe de 15 villas Individuelle nichées dans les collines sereines de Geroskipou. Conçues avec une attention méticuleuse aux détails, ces résidences mélangent la sophistication moderne avec un confort, une intimité et des vues à couper le souffle. Accès facile: Près des centres-villes, des autoroutes et des équipements essentiels. Environnement calme: Une retraite sereine de l'agitation de la vie quotidienne. Brillant architecture Design à plan ouvert: Intérieurs spacieux avec des plafonds élevés et un flux intérieur-extérieur sans couture. Éclairage naturel: Porte et fenêtre coulissantes allant du sol au plafond qui inondent les espaces de lumière naturelle. Le salon privé Piscine pour la détente et la récréation. Un barbecue et des espaces de divertissement parfaits pour les réunions. Contrôle du climat et efficacité Système de refroidissement à base d'eau Chauffage au sol et VRV. Système solaire photovoltaïque écologique de 6,72 kW. Dispositions pour les rideaux et volets électriques. Des cadres en aluminium Slimline d'exceptionnelle qualité avec isolation thermique. Des plafonds de 3,1 m et des portes de 2,4 m, pour améliorer l'élégance et l'espace. Catégorie A d'efficacité énergétique pour une vie durable. Amélioration du confort et de la sécurité Les caractéristiques de la maison intelligente comprennent une alarme, une caméra de surveillance et une surveillance à distance. Porte électrique avec station de recharge EV. Salles de bains et plomberie de luxe Douches avec verre de sécurité et équipements haut de gamme. Systèmes de filtration et d'adoucissement de l'eau de cuisine. Une salle mécanique souterraine et de l'eau chaude instantanée. Découvrez un mélange harmonieux de luxe moderne, de durabilité et de tranquillité dans un cadre vraiment exclusif.
Plus

*Certaines descriptions de biens immobiliers sur ce site sont traduites automatiquement par intelligence artificielle. Malgré tous nos efforts pour garantir leur exactitude, des erreurs ou des inexactitudes peuvent subsister. La version originale de l'annonce fait foi.

La carte peut ne pas indiquer l'emplacement exact

Cette annonce immobilière (réf: C4498) est fournie par Chapter One Properties et ne constitue pas nécessairement une description précise d’un bien particulier. Bien que aplaceinthesun.com (APITS Ltd.) demande à tous les annonceurs de fournir des informations correctes, il ne vérifie pas les informations fournies et ne peut être tenu responsable pour quelque erreur que ce soit. Aplaceinthesun.com recommande de solliciter un avis juridique indépendant avant tout achat de bien immobilier à l'étranger.