Premium New development

Villa de 4 chambres à vendre à Alhaurín el Grande

Alhaurín el Grande, Malaga, Andalousie, Espagne

€995 000  [£866 197]

Villa de 4 chambres à vendre à Alhaurín el Grande

Alhaurín el Grande, Malaga, Andalousie, Espagne

€995 000  [£866 197]

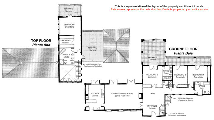
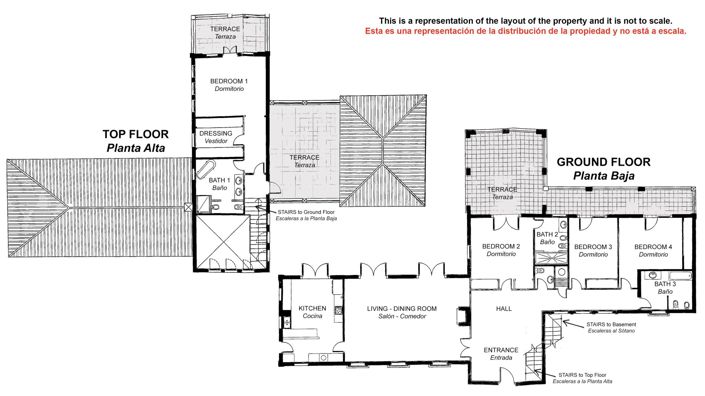
Détails du bien immobilier


  • Chambres: 4
  • Salles de bain: 3
  • Surface du terrain: 1500 m2
  • Surface habitable: 440 m2

Description complète


Un Villa exceptionnel avec une vue fantastique, 4 chambres, piscine et Garage, situé à À distance de marche de la ville. Situé dans un quartier résidentiel calme, cet impressionnant Villa a tout. En entrant dans la propriété par les portes d'entrée électriques, vous êtes immédiatement accueilli par la superbe piscine et la cuisine et le bar d'été de style Tiki Hut. C'est une excellente zone de divertissement. La porte principale vous conduit dans un grand hall d'entrée avec un plafond de double hauteur. À l'étage, la suite principale avec salle de bain, dressing, chambre très spacieuse, plus une Balcon et une Terrasse latérale, toutes deux avec une vue incroyable. Au rez-de-chaussée, il y a 3 chambres, 2 salles de bains et toilettes. La troisième chambre pourrait être utilisée comme annexe d'hôtes car elle dispose d'un salon avec la chambre à l'étage et des portes menant directement à la Terrasse. Le salon principal est un grand et lumineux salon-salle à manger à double aspect avec Cheminée et mène au luxueux Cuisine équipée avec île centrale, qui mène à son tour à la piscine et à la zone de divertissement. Le bas Rez-de-chaussée a une cave de 96 m2, assez grande pour plusieurs voitures ou pour couvrir un espace de vie supplémentaire. Il y a aussi une salle des machines qui héberge l'équipement technique pour le Maison. Il y a des panneaux solaires qui alimentent le Chauffage au sol, l'eau chaude domestique et la piscine, selon la période de l'année. La propriété a été construite avec des matériaux de première classe et en plus du Chauffage au sol, il y a de la climatisation chaude et froide partout.
Plus

*Certaines descriptions de biens immobiliers sur ce site sont traduites automatiquement par intelligence artificielle. Malgré tous nos efforts pour garantir leur exactitude, des erreurs ou des inexactitudes peuvent subsister. La version originale de l'annonce fait foi.

La carte peut ne pas indiquer l'emplacement exact

Cette annonce immobilière (réf: MLSC435248) est fournie par Your Dream Home Spain et ne constitue pas nécessairement une description précise d’un bien particulier. Bien que aplaceinthesun.com (APITS Ltd.) demande à tous les annonceurs de fournir des informations correctes, il ne vérifie pas les informations fournies et ne peut être tenu responsable pour quelque erreur que ce soit. Aplaceinthesun.com recommande de solliciter un avis juridique indépendant avant tout achat de bien immobilier à l'étranger.