Premium New development

Terrain à vendre à Stalida

Stalida, Héraklion, Crète, Grèce

€1 100 000  [£966 523]

Terrain à vendre à Stalida

Stalida, Héraklion, Crète, Grèce

€1 100 000  [£966 523]

Détails du bien immobilier


  • Chambres: 0
  • Salles de bain: 0

Description complète


Building plot of 2914 m2 inside the seaside tourist resort of Stalida at the north coast of Crete, right between the established tourist resorts of Malia and Chersonissos, only a 3-minute walk to the nearest organized sandy beach.

The land is totally flat and easy to build on.
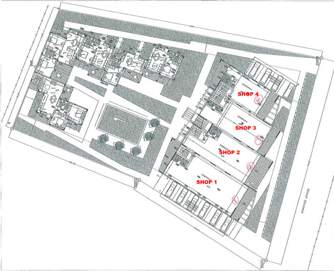
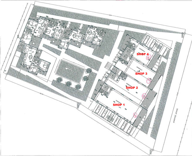
It already has a building license for 15 tourist apartments of 991 m2 in total + 608 m2 of basement and 4 shops of 512 m2 in total (total building size: 1503 m2 on two floors + 608 m2 basement). The building license is valid until the end of 2025 with the possibility to modify the plans or to draw entirely new plans and apply for a new building license.

The land has excellent road access and all services (electricity, water, telephone and broadband internet lines) are available right next door.

Since the plot is positioned right inside the tourist village of Stalida, it is surrounded by all sorts of amenities (shops, car rental, restaurants, bars, etc.) and in easy walking distance (270m) to the nearest organized sandy beach.

The larger tourist towns of Chersonissos and Malia are only a very short drive away.
The international airport of Heraklion is only about a 20-minute drive from the plot.

 
Plus

La carte peut ne pas indiquer l'emplacement exact

Cette annonce immobilière (réf: 4D-PLSTA1k) est fournie par Buy and Sell Estate Agency et ne constitue pas nécessairement une description précise d’un bien particulier. Bien que aplaceinthesun.com (APITS Ltd.) demande à tous les annonceurs de fournir des informations correctes, il ne vérifie pas les informations fournies et ne peut être tenu responsable pour quelque erreur que ce soit. Aplaceinthesun.com recommande de solliciter un avis juridique indépendant avant tout achat de bien immobilier à l'étranger.