Premium New development

Terrain à vendre à Elounda

Elounda, Lasithi, Crète, Grèce

€1 100 000  [£960 363]

Terrain à vendre à Elounda

Elounda, Lasithi, Crète, Grèce

€1 100 000  [£960 363]

Détails du bien immobilier


  • Chambres: 0
  • Salles de bain: 0

Description complète


3 adjacent building plots (A, B, C) nicely positioned inside the village planning zone of Chavgas, an elevated area above the pretty fishing village of Plaka, where several luxury villas have already been built because of the excellent panoramic views of the sea, the historic island of Spinalonga and the mountains.

Plot A is 797 m2 in size and has a building license for 345 m2 of residential buildings in total, specifically:
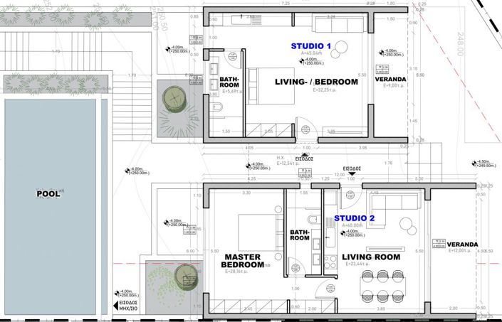
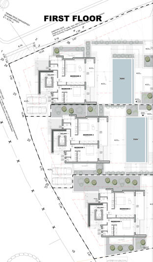
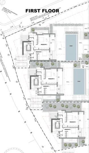
- A 3-bedroom main house of 240 m2 on two floors + basement,
- A 1-bedroom bungalow of 60 m2,
- A studio of 45 m2,
- A swimming pool of 40 m2.

Plot B is 773 m2 in size and has a building license for 360 m2 of residential buildings in total, specifically:
- A 3-bedroom main house of 240 m2 on two floors + basement,
- Two 1-bedroom bungalows of 60 m2 each,
- A swimming pool of 40 m2.

Plot C is 719 m2 in size and has a building license for 335 m2 of residential buildings in total, specifically:
- A luxury 3-bedroom main house of 240 m2 on two floors + basement,
- A 1-bedroom bungalow of 60 m2,
- A studio of 35 m2,
- A swimming pool of 40 m2.

The buildings will be constructed to the highest quality standards. The main houses comprise a spacious 62 m2 open kitchen-dining-living area on the ground floor, two double bedrooms with en-suite bathrooms on the first floor and a third bedroom and WC along with a storage room on basement level.
All three floors (first floor, ground floor, basement) are accessible via both an elevator and stairs.

The asking price is for the purchase of the plots and the building licenses only, the construction costs are not included.

The plots have good road access via a stone paved driveway and all services (electricity, water, telephone, broadband internet / WIFI) are on site.

Next to plot C is a piece of land, 2079 m2 insize, which is outside of the village planning zone thus not buildable. It is part of the property and included in the sale and whoever will own plot C, will have the right to use the unbuildable area next door.

Chavgas is a part of the highly established elite tourist region of Elounda, Crete, and properties in this area have the potential to yield a high income via short-term rental / Airbnb and great resale prices.

The closest village from this area is a wonderful seaside village called Plaka. Plaka is about 4 km from Chavgas.
Plaka has a few good tavernas, cafeterias and shops. There is also a large pebble beach and a small harbor from which boats leave and go across to Spinalonga island, a very popular tourist attraction.

The town of Elounda is about a 15-minute drive from the plots while the capital of the area, Agios Nikolaos, is a 25-minute drive away.

The international airport of Heraklion is less than an hour's drive from here.

Agios Nikolaos is the capital of the county Lasithi and is located at the Mirabello Bay, north-east Crete, only 40 mins away from the international airport of Heraklion.
Geographically the town is well protected from strong winds allowing sea sports and swimming nearly all year round.
Although Agios Nikolaos has a population of less than 20,000 it has a several banks, supermarkets, shops of every kind, doctors, a modern hospital of high standard, public swimming pool and tennis courts, yacht marina, harbour, cinema, theatre, gyms, a 9-hole golf course, schools ranging from nurseries to 6-level high school and generally all the amenities you would expect to find in a modern European town.
The microclimate is one of the best in Greece and the moderate temperatures rarely exceed 30c in summer or fall below 15c in wintertime. This wonderful dry climate together with the natural beauty of the area has attracted most of the high class hotels of Greece to operate here.
Plus

La carte peut ne pas indiquer l'emplacement exact

Cette annonce immobilière (réf: 5D-PLPLA33) est fournie par Buy and Sell Estate Agency et ne constitue pas nécessairement une description précise d’un bien particulier. Bien que aplaceinthesun.com (APITS Ltd.) demande à tous les annonceurs de fournir des informations correctes, il ne vérifie pas les informations fournies et ne peut être tenu responsable pour quelque erreur que ce soit. Aplaceinthesun.com recommande de solliciter un avis juridique indépendant avant tout achat de bien immobilier à l'étranger.