Premium New development

Appartement de 1 chambre à vendre à Leivadia

Leivadia, Larnaca, Chypre

€185 000  [£163 456]

Appartement de 1 chambre à vendre à Leivadia

Leivadia, Larnaca, Chypre

€185 000  [£163 456]

Détails du bien immobilier


  • Chambres: 1
  • Salles de bain: 1

Description complète


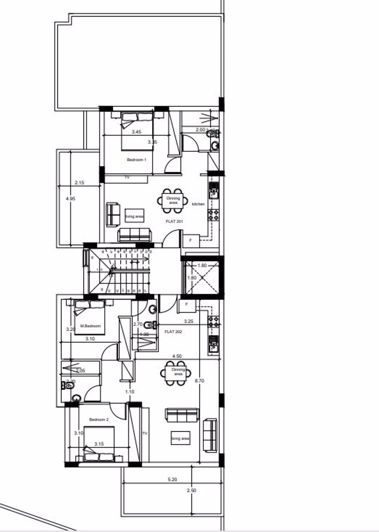
One Bedroom Penthouse Apartment For Sale in Livadia, Larnaca - Title Deeds (New Build Process)

Only 1 One bedroom penthouse apartment available !! - 201

This project is a high end residential development consisting of 2 floors with 1 & 2 bedroom apartments plus a duplex apartment with a private garden area. This residence is set in a great location only 6 Minutes drive to the Sea and to the American University of Cyprus, and a short drive to the new Larnaca Marina and the beach.

- 1 Bedroom with fitted wardrobes

- Open plan living - dining and kitchen area

- Family bathroom

- Provisions for air conditioning

- Unfurnished

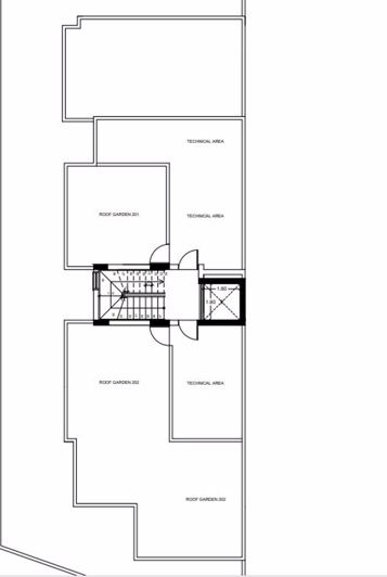
- Roof terrace

- Parking

- Allocated storage

- Internal 50 m²

- Covered veranda 11 m²

- Roof terrace 30 m²

- Communal fees TBC

- Close to local shops and amenities

- 6 Minutes to the sea

- 6 Minutes to the American University of Cyprus

- 10 Minutes to the beach

- 10 Minutes to the New Larnaca Marina

- 17 Minutes to Larnaca International Airport

- Suitable for Cyprus Permanent Residency

- Subject to VAT

- Energy Efficiency TBC

Livadia

The village of Livadia is a large community found on the north side of Larnaca, where the settlement of Tridaton used to flourish. The village took its name from the Greek word for fields (livadia) due to the flat area of grassland with running waters and rich pasture. In olden days, the women spent whole days of the year paring and splitting reeds, in order to make various basketry products, and Livadia is the only place on the island where ‘psatharkes’ (traditionally used for roofing) are made.

Work has now started on the vast project of the "Land of Tomorrow that will transform one of the largest areas of Larnaca, improving the image not only locally but also Cyprus at the international level. The Land of Tomorrow project will provide new and important investment opportunities in the areas of entrepreneurship, tourism, culture, innovation and the environment in Cyprus.
Plus

La carte peut ne pas indiquer l'emplacement exact

Cette annonce immobilière (réf: 12545115) est fournie par Cyprus Emerald et ne constitue pas nécessairement une description précise d’un bien particulier. Bien que aplaceinthesun.com (APITS Ltd.) demande à tous les annonceurs de fournir des informations correctes, il ne vérifie pas les informations fournies et ne peut être tenu responsable pour quelque erreur que ce soit. Aplaceinthesun.com recommande de solliciter un avis juridique indépendant avant tout achat de bien immobilier à l'étranger.