Premium New development
Retour aux Résultats

Villa de 3 chambres à vendre à Algorfa

Algorfa, Alicante, Région de Valence, Espagne

€478 000  [£416 123]

Villa de 3 chambres à vendre à Algorfa

Algorfa, Alicante, Région de Valence, Espagne

€478 000  [£416 123]

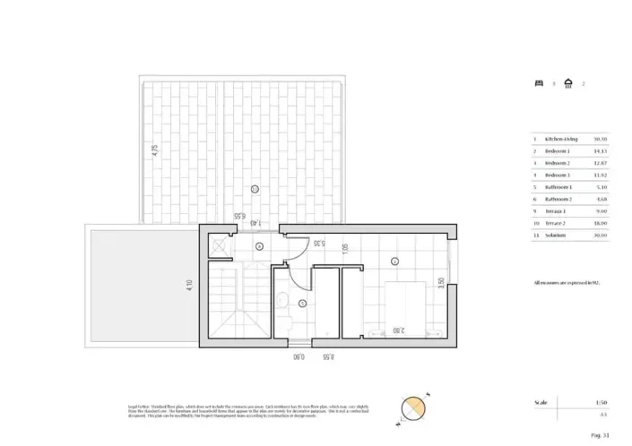
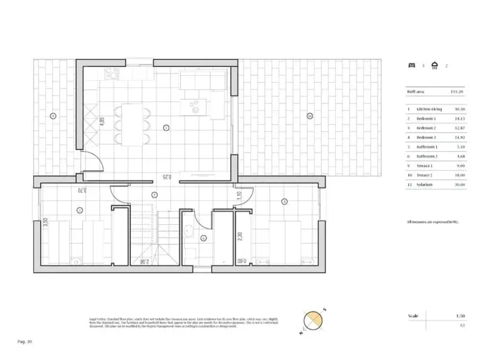
Détails du bien immobilier


  • Chambres: 3
  • Salles de bain: 2
  • Surface du terrain: 316 m2
  • Surface habitable: 113 m2

Description complète


Un forfait exclusif est inclus dans toutes nos nouvelles propriétés.

3 chambres 2 chambres 2 salles de bain Golf Villa sur La Finca Golf Algorfa

OVERVIEW DE PROPERTÉ:

Enregistrer 8.000 € avec cette propriété.

Ce développement exclusif combine la vie de luxe avec les avantages des équipements de style resort, créant la maison idéale pour les amateurs de golf et ceux qui recherchent un style de vie méditerranéen relaxant.

Situées sur deux étages, ces villas spacieuses offrent 3 chambres, 2 salles de bains, espaces de séjour, salle à manger et cuisine.

Cette maison est finie à un niveau supérieur avec des luminaires et des équipements tels que des tuyaux, une cuisine climatisée, des volets électriques et un système d'irrigation, un jardin et un En outre, un système d'alarme entièrement équipé assure la tranquillité d'esprit.

Cette superbe villa Villa est inondée de lumière naturelle du sol surdimensionné aux fenêtres du plafond.

À l'extérieur, vous êtes accueilli par un luxe Piscine privée situé dans un espace généreux Terrasse, parfait pour vous rafraîchir des 325 jours de soleil méditerranéen glorieux.

Avec une note EPC A, ces villas offrent une efficacité énergétique et une durabilité, ce qui en fait un choix écologique pour les propriétaires.

Un lieu Parking est également inclus dans la salle de sport Terrain.

Location:

Ce complexe résidentiel est situé à Laval, dans la municipalité de Baja Vega, dans le quartier de XYZYY Vous trouverez également une sélection de bars et restaurants et un club magnifique Maison.

A seulement 15 minutes en voiture des plages de sable de Guardamar del Segura, et à seulement 35 minutes de l'aéroport Alicante.

Les grandes villes d'Almoradi, Benijófar et Ciudad Quesada sont à une courte distance en voiture.

Torrevieja et Orihuela Costa, avec leurs grands centres commerciaux, leurs plages de sable, leurs sports nautiques, leurs marchés et bien plus encore, sont à seulement 15 minutes.

Un endroit superbe pour les golfeurs avec beaucoup à faire pour toute la famille. Pourquoi choisir Movehappy? Nous vous souhaitons la bienvenue à Movehappy. Nous sommes fiers de vous proposer une nouvelle façon innovante et rafraîchissante d'acheter votre nouvelle maison de rêve à Espagne. Toutes nos propriétés sont offertes avec notre package unique Movehappy. Cela vous permet d'économiser jusqu'à 18 000 €. Le forfait comprend des services juridiques espagnols et un bon de mobilier. Nous avons une équipe dédiée et multilingue pour vous aider et nous pouvons organiser votre propriété Rechercher du début à la fin, rendant votre parcours d'achat agréable et sans stress. Nous sommes certifiés API (API membre numéro 593) et donc autorisés à pratiquer tous les services immobiliers, vous donnant la plus grande tranquillité d'esprit. Acheter votre propriété auprès d'un agent certifié API comme Movehappy signifie que vous pouvez garantir que vous serez accueilli avec des connaissances précieuses, l'honnêteté et l'intégrité. Non seulement cela, mais il y a aussi ce qui suit: Créée depuis 2003 Société anonyme espagnole entièrement enregistrée Membres de l'AIPP (Association des professionnels de l'immobilier) Assurance responsabilité civile publique Service après-vente complet Commencez votre voyage immobilier en Espagne avec Movehappy aujourd'hui et ensemble, nous trouverons la propriété qui vous convient.
Plus

*Certaines descriptions de biens immobiliers sur ce site sont traduites automatiquement par intelligence artificielle. Malgré tous nos efforts pour garantir leur exactitude, des erreurs ou des inexactitudes peuvent subsister. La version originale de l'annonce fait foi.

La carte peut ne pas indiquer l'emplacement exact

Cette annonce immobilière (réf: MOHN8485) est fournie par Movehappy SL et ne constitue pas nécessairement une description précise d’un bien particulier. Bien que aplaceinthesun.com (APITS Ltd.) demande à tous les annonceurs de fournir des informations correctes, il ne vérifie pas les informations fournies et ne peut être tenu responsable pour quelque erreur que ce soit. Aplaceinthesun.com recommande de solliciter un avis juridique indépendant avant tout achat de bien immobilier à l'étranger.