Premium New development

Maison de ville de 2 chambres à vendre à Carvoeiro

Carvoeiro, Algarve, Portugal

€519 500  [£452 723]

Maison de ville de 2 chambres à vendre à Carvoeiro

Carvoeiro, Algarve, Portugal

€519 500  [£452 723]

Détails du bien immobilier


  • Chambres: 2
  • Salles de bain: 3
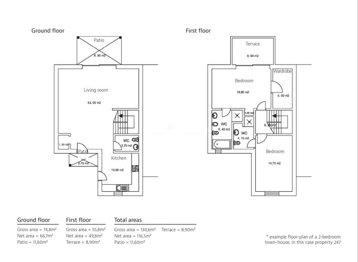
  • Surface habitable: 124 m2

Description complète


These spacious 2-bedroom duplex townhouses are an exceptional investment, with guaranteed annual returns of up to 5.4% until 2027. They are located in Carvoeiro, one of the Algarve's top holiday destinations, offering a unique blend of tranquillity and luxury.

Each townhouse is fully furnished and finished to a high standard, surrounded by the resort's serene atmosphere, which features three interconnected ponds and lush landscaping. Vale da Lapa offers a wide range of premium amenities, including a spa, gym, multiple pools (indoor and outdoor), a restaurant, and an all-day bar. Its family-friendly, with a kids' club, playground, and various sports facilities such as paddle courts and a multi-purpose field, making it ideal for guests of all ages.

Additionally, its proximity to Carvoeiros beaches and vibrant village life adds to its appeal, offering a perfect balance of relaxation and adventure. Dont miss this rare chance to own a property in a sought-after holiday destination, with both immediate rental income and long-term investment security.

Investors can choose from five flexible packages, allowing for varying levels of personal use, while still securing consistent returns. After 2027, properties are included in a rental pool, providing long-term income potential.

Fine & Country Algarve is part of the international network of F&C offices in over 300 locations worldwide, we have four offices in the Algarve covering the whole region from east to west. We also work closely with the Fine & Country offices elsewhere in Portugal and internationally. In the Algarve, Fine & Country has a vast portfolio of properties for sale and a dedicated team of professionals with in-depth market knowledge.

* The feature(s) equipment(s) mentioned in this description are subject to verification and agreement between the vendors and buyers.

EPC: A - REF: 226/Z VL2
Plus

La carte peut ne pas indiquer l'emplacement exact

Cette annonce immobilière (réf: 226/Z VL2) est fournie par Fine and Country Algarve et ne constitue pas nécessairement une description précise d’un bien particulier. Bien que aplaceinthesun.com (APITS Ltd.) demande à tous les annonceurs de fournir des informations correctes, il ne vérifie pas les informations fournies et ne peut être tenu responsable pour quelque erreur que ce soit. Aplaceinthesun.com recommande de solliciter un avis juridique indépendant avant tout achat de bien immobilier à l'étranger.